立即预约 立即预约
免费定制整装家居

免费定制整装家居

一站置家 全程无忧 一省到底
hide.png

当前位置: 首页 > 装修案例效果图 > 泰华旭景城

泰华旭景城 125平 现代简约风格效果图

收藏
案例风格 现代简约 案例户型 三居 案例面积 125平米
楼盘名称 泰华旭景城 设计师 林凤装饰设计师 案例类型 改善性住宅

设计理念:撞色是近年来出现频率十分高的一个词语,它不仅代表着现代年轻人的个性、青春、时尚与自信,也代表着时至今日,艺术领域的不断丰富和发展。在本案例中摒弃安全却又平庸的同色系搭配法,采用了大胆新奇的色彩搭配方案使空间“撞”出更多精彩。

  • 案例详情

泰华旭景城-125平-现代-客厅1.jpg

客厅在颜色的运用上采用低饱和度的撞色搭配上现代的软装家具使空间充满了现代 时尚的氛围。个性化的定制电视柜可以很好地解决到业主入户后的储物问题。

泰华旭景城-125平-现代-次卧1.jpg 泰华旭景城-125平-现代-次卧2.jpg 泰华旭景城-125平-现代-客卧1.jpg 泰华旭景城-125平-现代-客卧2.jpg 泰华旭景城-125平-现代-主卧室1.jpg 泰华旭景城-125平-现代-客卧3.jpg 泰华旭景城-125平-现代-主卧室2.jpg 泰华旭景城-125平-现代-主卧室3.jpg

主卧室说明:主卧室墙面整体采用偏暖色的壁纸,床头背景墙的石膏线造型增加了空间的层次。

泰华旭景城-125平-现代-卫生间1.jpg 泰华旭景城-125平-现代-卫生间3.jpg 泰华旭景城-125平-现代-卫生间2.jpg

卫生间整体为冷色调,为了避免后期卫生间的卫生打扫时的不便所以采用的是干湿分离的设计方式,两组通顶的放置柜可以解决业主大部分的杂物收纳。

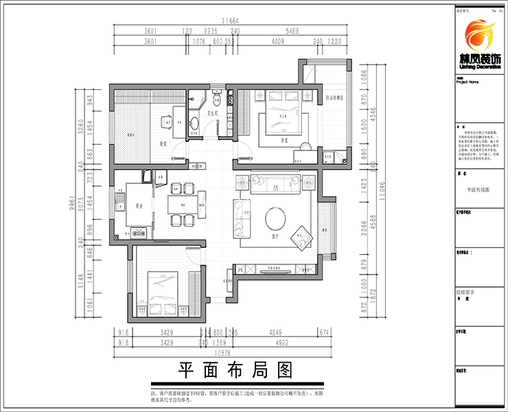
泰华旭景城-125平-现代-厨房.jpg 泰华旭景城-125平-现代-平面图.jpg

案例设计师

林凤装饰设计师

设计师:林凤装饰设计师

从业时间:7年

设计理念:设计·演绎生活

预约设计师

算算你家装修多少钱

报名即享丰厚赠品,享半价装修

免费报价
咨询热线:400-656-9909
20190221103704574636.jpg

精品设计案例

20180612134930523248.jpg 服务号二维码.jpg