立即预约 立即预约
免费定制整装家居

免费定制整装家居

一站置家 全程无忧 一省到底
hide.png

当前位置: 首页 > 装修案例效果图 > 远洋大河宸章

远洋大河宸章 164平 欧式风格效果图

收藏
案例风格 欧式 案例户型 四居 案例面积 164平米
楼盘名称 远洋大河宸章 设计师 林凤装饰全案设计师 案例类型 改善性住宅

设计理念:本案涉及以欧式为主,整个空间弥漫着奢华与浪漫的气氛,硬朗的材质,明快的色彩、柔美的家具、雅致的配饰,赋予空间素净、明亮的神采。空间一方面保留了材质,色彩的大致风格,仍然可以很强烈的表现传统的历史痕迹与浑厚的文化底蕴,同时又摒弃了过于复杂的肌理和装饰,简化了线条。
组合家具的颜色选用白色和流行色,仿佛为主人编织了一个明快美丽的梦想。在整个空间里,在墙上抽象画,以营造浓郁的艺术氛围,表现主人的文化素养。运用简单的线条来营造整个效,客厅顶部吊灯营造气氛。灯自然不可或缺,它被安置在空间的交汇处,又与色彩鲜艳的油画相呼应,提供了一个新的亮点。
室内则有壁灯造型。客厅家具采用白色皮艺沙发组合有着深色的抱枕的质感,墨绿色的抱枕以及同色的脚蹬来营造整体效果,色彩鲜艳的整体搭配都是本案欧式客厅里的主角。本案强调表面装饰,多运用细密绘画的手法,具有丰富华丽的效果。

客厅
第1张
第2张
餐厅
第1张
第2张
第3张
卧室
第1张
卫生间
第1张
厨房
第1张
门厅
第1张
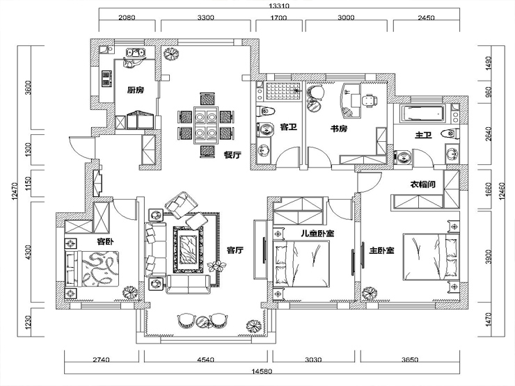
户型图
第1张
远洋大河宸章-164平-欧式风格-客厅.jpg 远洋大河宸章-164平-欧式风格-客厅2.jpg

客厅设计具有简欧风格的大气典雅,同时带有些许时尚简约感,空间以米白色为主调,整体带有水洗般的澄澈感。简化的欧式线条明快利落,同样图案的浅灰色地毯与其交相呼应,仿若其投下的倒影,让人想起徐志摩的一句诗“我是天边的一片云,偶尔投点在你的波心”。欧式布艺吊灯、金属罩灯,彰显出一种欧式的雅致韵味。

远洋大河宸章-164平-欧式风格-餐厅.jpg 远洋大河宸章-164平-欧式风格-餐厅3.jpg 远洋大河宸章-164平-欧式风格-餐厅2.jpg

餐厅与客厅相连,设计风格亦如出一辙,天花配上精致优雅的欧式角线,十分别致。大束黄花置于湖水绿的玻璃瓶中,让人感受到春的清新与妍丽。

远洋大河宸章-164平-欧式风格-卧室.jpg

主卧设计整体给人的感觉是舒适雅致、时尚简约,轻柔的乳白色奠定了整个空间和谐宁静的基调,让人心灵平和。通透的落地窗让户外的精致一览无余,经现代手法重新演绎的欧式墙面装饰,带有一丝英伦风情,又使整个空间显得丰富并具有层次变化。花朵挂画、沙发、以及床上的抱枕,都选用了低饱和度的蓝色,看上去自然舒适。欧式布艺灯优雅别致,散发出温暖柔和的光,轻柔地洒在挂画、相架以及花瓶里盛开的百合上,不禁让人想起这样一副美妙的画面:主人经过一夜好眠,黎明渐渐苏醒,清凉的空气拂动窗帘,百合花散发着幽香,时光缓缓移步。

远洋大河宸章-164平-欧式风格-卫生间.jpg 远洋大河宸章-164平-欧式风格-厨房.jpg 远洋大河宸章-164平-欧式风格-玄关.jpg 平面布置图.jpg

案例设计师

林凤装饰全案设计师

设计师:林凤装饰全案设计师

从业时间:8年

设计理念:设计改变生活

预约设计师

算算你家装修多少钱

报名即享丰厚赠品,享半价装修

免费报价
咨询热线:400-656-9909
20190221103704574636.jpg

精品设计案例

20180612134930523248.jpg 服务号二维码.jpg