立即预约 立即预约
免费定制整装家居

免费定制整装家居

一站置家 全程无忧 一省到底
hide.png

当前位置: 首页 > 装修案例效果图 > 华润二十四城

华润二十四城 152平 轻奢风格效果图

收藏
案例风格 轻奢 案例户型 四居 案例面积 152平米
楼盘名称 华润二十四城 设计师 林凤装饰全案设计师 案例类型 改善性住宅

设计理念:轻奢,想必大家都不陌生。“轻奢华,新时尚”是近些年兴起的一种新的生活理念,这种风格是理智的追求更高生活品质的结合。

客厅
第1张
第2张
餐厅
第1张
第2张
卧室
第1张
卫生间
第1张
门厅
第1张
过廊
第1张
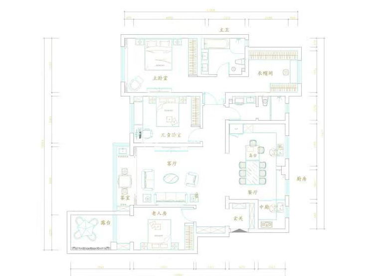
户型图
第1张
华润二十四城-152平-轻奢风格-客厅.jpg 华润二十四城-152平-轻奢风格-客厅2.jpg

整体客厅点缀着金属颜色的高级感。素净的白,安静的灰,明媚的黄与沉醉的金属质感,看似简约的设计,却将整个空间气质提升一个新的高度。棉麻质地得沙发,为空间增添了些柔软,舒适生活的情趣,不过如此。

华润二十四城-152平-轻奢风格-餐厅.jpg 华润二十四城-152平-轻奢风格-餐厅2.jpg

餐厅的基调温情而克制,整体为敞开式厨房,中间岛台和餐桌完美得通过石材结合在一起,把客厅餐厅融为一体,整体通透视觉,把这个大空间表现得淋漓尽致。业主非常认可这个方案及效果。

华润二十四城-152平-轻奢风格-卧室.jpg

主卧室使用灰色墙软包,棚面选择整体边棚及整体平棚,增加夜间室内辅助光源,床品也选择软包床头,卧室第一是舒适,再去考虑整体效果是我个人整体设计理念。

华润二十四城-152平-轻奢风格-卫生间.jpg

客卫采用了干湿分离,把淋浴间和马桶放在一起空间,这样完全可以满足如果5口人居住得话也是互不影响的,墙面运用了深色瓷砖,台面运用定制石材,跟业主想要得简约奢华完全统一。

华润二十四城-152平-轻奢风格-入户.jpg 华润二十四城-152平-轻奢风格-过道.jpg 华润二十四城-152平-轻奢风格-平面图.jpg

案例设计师

林凤装饰全案设计师

设计师:林凤装饰全案设计师

从业时间:8年

设计理念:设计改变生活

预约设计师

算算你家装修多少钱

报名即享丰厚赠品,享半价装修

免费报价
咨询热线:400-656-9909
20190221103704574636.jpg

精品设计案例

20180612134930523248.jpg 服务号二维码.jpg