立即预约 立即预约
免费定制整装家居

免费定制整装家居

一站置家 全程无忧 一省到底
hide.png

当前位置: 首页 > 装修案例效果图 > 华润二十四城

华润二十四城 132平 美式风格效果图

收藏
案例风格 美式 案例户型 三居 案例面积 132平米
楼盘名称 华润二十四城 设计师 林凤装饰全案设计师 案例类型 改善性住宅

设计理念:本案主要想设计这样一间充满端庄大气沉稳的房子,为业主营造一种怡然从容的生活方式。在这里,清晨第一缕阳光将沉睡的人们唤醒,睁开惺忪的睡眼,在阳光里轻轻柔柔,迎接一天的开始。

客厅
第1张
第2张
第3张
餐厅
第1张
第2张
卧室
第1张
卫生间
第1张
厨房
第1张
门厅
第1张
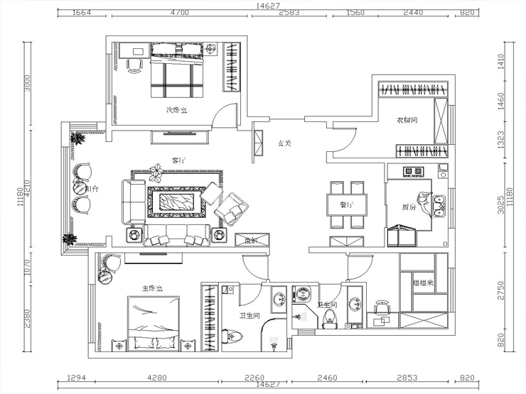
户型图
第1张
  • 案例详情

华润二十四城-132平-美式风格-客厅2.jpg 华润二十四城-132平-美式风格-客厅.jpg 华润二十四城-132平-美式风格-客厅3.jpg

客厅较多采用嵌入式石膏吊顶,搭配精致吊灯,营造出一种怀旧的感觉,以仿古砖为地面装饰材料,非常有质感,在沙发区铺上大幅花纹地毯,使空间区域划分更加清晰。复古造型的组合沙发,以及茶几都具有上乘的感觉,让美式古典风格得以进一步彰显。

华润二十四城-132平-美式风格-餐厅.jpg 华润二十四城-132平-美式风格-餐厅2.jpg

粗犷、大气的美式餐桌椅,搭配复古造型的角几,让人迷失在时光隧道中。美式风格家具特点:用材多为实木,多以桃花木、枫木及松木制作。家具表面精心涂饰和雕刻,表现出独特的美式风格家居特色。

华润二十四城-132平-美式风格-卧室.jpg

卧室通常是以功能性和实用舒适度为主要设计理念。灯光很重要,这样会显得温馨舒适。在饰品布置上,大多都是用成套的布艺来装饰房间。

华润二十四城-132平-美式风格-卫生间.jpg 华润二十四城-132平-美式风格-厨房.jpg

整体采用米色地砖及墙砖作为衬底,主要突显深木色的实木橱柜,棚面采用不是往常的集成吊顶,而是采用防潮石膏板,这样整体才能搭配出美式偏古典一点的设计风格。

华润二十四城-132平-美式风格-玄关.jpg 户型图.jpg

案例设计师

林凤装饰全案设计师

设计师:林凤装饰全案设计师

从业时间:8年

设计理念:设计改变生活

预约设计师

算算你家装修多少钱

报名即享丰厚赠品,享半价装修

免费报价
咨询热线:400-656-9909
20190221103704574636.jpg

精品设计案例

20180612134930523248.jpg 服务号二维码.jpg