立即预约 立即预约
免费定制整装家居

免费定制整装家居

一站置家 全程无忧 一省到底
hide.png

当前位置: 首页 > 装修案例效果图 > 中铁丁香水岸

中铁丁香水岸 121平 新中式风格效果图

收藏
案例风格 新中式 案例户型 三居 案例面积 121平米
楼盘名称 中铁丁香水岸 设计师 林凤设计师 案例类型 婚房

设计理念:中铁丁香水岸121平3居室林凤装饰是以新中式中式为主。整体色彩以深色实木为主,家具大多采用实木木家具,使空间看起来简洁干净自然大气。

客厅
第1张
第2张
餐厅
第1张
卧室
第1张
卫生间
第1张
厨房
第1张
门厅
第1张
过廊
第1张
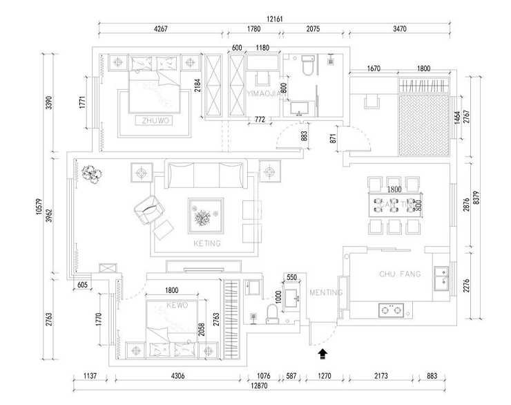
户型图
第1张
  • 案例详情

丁香水岸-121平-新中式风格-客厅.jpg 丁香水岸-121平-新中式风格-沙发墙.jpg

深色木色的地板搭配上黑色乳胶漆让整个空间看起来非常协调大方,定制的玻璃门衣柜会使整个卧室空间感放大。

丁香水岸-121平-新中式风格-餐厅.jpg

餐厅也以木质家具为主,深色的桌子与灰色的地砖显得十分惹人注目,定制的实木酒柜也与餐桌形成了对比,但是让人看起来非常的舒适。

丁香水岸-121平-新中式风格-卧室.jpg

深色木色的地板搭配上黑色乳胶漆让整个空间看起来非常协调大方,定制的玻璃门衣柜会使整个卧室空间感放大。

丁香水岸-121平-新中式风格-卫生间.jpg

卫生间空间相比其它地方是比较小的,墙砖与地砖的搭配颜色是比较接近的这样看起来非常的简洁明亮,墙上的壁画让整个卫生间看起来不那么单调。

丁香水岸-121平-新中式风格-厨房.jpg 丁香水岸-121平-新中式风格-门厅.jpg 丁香水岸-121平-新中式风格-过廊.jpg 丁香水岸-121平-新中式风格-平面图.jpg

案例设计师

林凤设计师

设计师:林凤设计师

从业时间:0年

设计理念:

预约设计师

算算你家装修多少钱

报名即享丰厚赠品,享半价装修

免费报价
咨询热线:400-656-9909
20190221103704574636.jpg

精品设计案例

20180612134930523248.jpg 服务号二维码.jpg