立即预约
免费定制整装家居
一站置家 全程无忧 一省到底
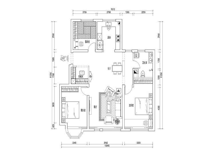
设计理念:金地铁西檀府125平3居室林凤装饰的整体设计为现代简约风格,将整个空间以大面积的色块进行各功能区的划分,在以颜色的区分范围进行吊顶的设计,是各功能区的划分更加明白清晰。
案例详情
客厅采用灰色,与黄色的结合,灰色本高级,黄色增加温馨与灵动,同时灰色和黄色寓意了(辉煌)之意。
餐厅与开敞的厨房在一起方便业主就餐。
卫生间选择的是暖色系列的马赛克砖。门口手盆的镜子把卫生间空间扩大了。镜前灯也给卫生间的暖色系增添了不少。
精品设计案例
设计说明:
三室两厅一厨两卫,高层整体采用美式风格,色调以深色为主,体现美式的居家感和温馨感。
设计说明:
本案业主为年轻时尚小两口,所以我们考虑到未来想要给未来宝宝一个温馨舒适的一个房间,所以本案整体采用现代风格的手法,运用颜色,来打造整体空间的设计感及时尚感
设计说明:
本案以北欧风格为主题的设计,北欧风格能以现代、简洁、自然的特点俘获人心,所营造出来的生活氛围会让人倍感舒适与自在。
设计说明:
客户是一名成功人士,对于家的执念就是简单干净,客户衣服比较多,所以把每个空间都做了大衣柜,并且融入到设计里