立即预约 立即预约
免费定制整装家居

免费定制整装家居

一站置家 全程无忧 一省到底
hide.png

当前位置: 首页 > 装修案例效果图 > 荣盛锦绣天地

荣盛锦绣天地 75平 北欧风格效果图

收藏
案例风格 北欧 案例户型 二居 案例面积 75平米
楼盘名称 荣盛锦绣天地 设计师 菅垚 案例类型 改善性住宅

设计理念:荣盛锦绣天地75平两居室北欧风格装修效果以简单明亮的颜色备受现代人的喜欢,在充分利用空间的同时,加入现代元素,使空间温馨又时尚,同时充满了文艺。

客厅
第1张
第2张
餐厅
第1张
第2张
第3张
卧室
第1张
第2张
卫生间
第1张
厨房
第1张
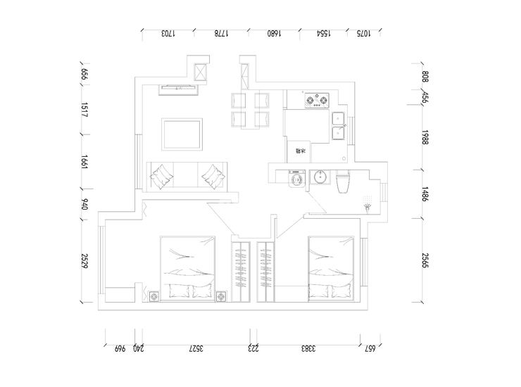
户型图
第1张
  • 案例详情

荣盛锦绣天地-72平-北欧风格-客厅 (1).jpg 荣盛锦绣天地-72平-北欧风格-客厅 (2).jpg

入户玄关处鞋柜以白色和木色为主,藏光设计非常时尚,原木色的地板更显温馨感,灰色的墙搭配白色的沙发,搭配黄色做点缀,使整个空间温馨、时尚。

荣盛锦绣天地-72平-北欧风格-餐厅 (2).jpg 荣盛锦绣天地-72平-北欧风格-餐厅 (1).jpg 荣盛锦绣天地-72平-北欧风格-餐厅 (3).jpg

整个餐厅没有加入多余的装饰,木色的餐桌搭配白色的椅子,简单温馨,黄色与灰色搭配的吊灯,搭配蓝色的酒杯,色彩丰富,文艺时尚,搭配简单绿植,使整个餐桌充满生机。

荣盛锦绣天地-72平-北欧风格-卧室 (1).jpg 荣盛锦绣天地-72平-北欧风格-卧室 (2).jpg

一个人素雅的简约卧室,绿色背景墙,深木色和浅木色搭配的家具,丰富了空间色彩,灰绿搭配的窗加上一个具有被特色的灯,凸显

荣盛锦绣天地-72平-北欧风格-卫生间.jpg

卫生间采用白色的小块瓷砖搭配黑色的美缝,木色吊柜搭配白色理石台面,简单干净,镜子的边框和门框采用黑色金属,与白色相对应,使整个卫生间看起来更加干净、不杂乱。

荣盛锦绣天地-72平-北欧风格-厨房.jpg

香槟色的橱柜搭配灰色墙砖,U型的橱柜设计,增加了操作空间,墙面的灰色与地面相呼应,简单、干净,让烹饪成为一种享受。

荣盛锦绣天地-72平-北欧风格-平面布置.jpg

案例设计师

菅垚

设计师:菅垚

从业时间:11年

设计理念:没有最好的方案,只有最适合的方案

预约设计师

算算你家装修多少钱

报名即享丰厚赠品,品质装修

免费报价
咨询热线:400-656-9909
20190221103704574636.jpg

精品设计案例

20180612134930523248.jpg 服务号二维码.jpg