立即预约 立即预约
免费定制整装家居

免费定制整装家居

一站置家 全程无忧 一省到底
hide.png

当前位置: 首页 > 装修案例效果图 > 孔雀城︱现代轻奢

孔雀城︱现代轻奢 270平 轻奢风格效果图

收藏
案例风格 轻奢 案例户型 五居 案例面积 270平米
楼盘名称 孔雀城 设计师 白涵琦 案例类型 改善性住宅

设计理念:本案采用现在很流行的现代轻奢风格,用金属线条、金属配饰、皮革等具有轻奢风格的元素点缀整个空间,为了凸显举架更高地下室和一楼之间做了镂空用来做客厅,各种元素的搭配做出具有轻奢风格的现代设计。业主是一对夫妇,想要空间温馨高贵,所以意向风格决定为现代轻奢风格业主有两个孩子,环保要求很高

客厅
第1张
第2张
第3张
餐厅
第1张
卧室
第1张
卫生间
第1张
厨房
第1张
阳台
第1张
儿童房
第1张
第2张
休闲区
第1张
第2张
衣帽间
第1张
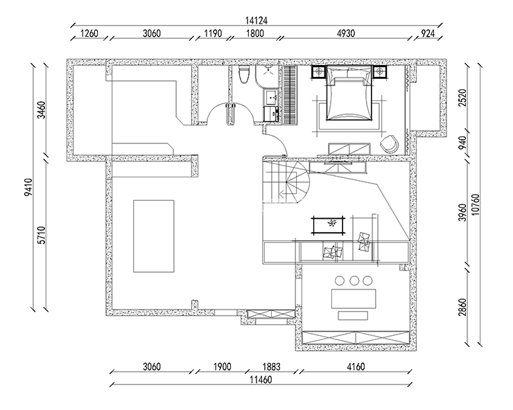
户型图
第1张
孔雀城  270平  现代轻奢 客厅 .jpg 孔雀城  270平  现代轻奢 客厅.jpg 孔雀城  270平  现代轻奢 首图.jpg

客厅在负一楼,电视背景墙运用大理石,金属线条作为点缀,并且与一楼连接做了镂空整个举架变高,凸显大气上档次。米黄色的沙发作为空间中的亮色,使空间不失品味和高贵。

孔雀城  270平  现代轻奢 餐厅.jpg

餐厅在一楼,作为除客厅以外最引人注意的空间,本次方案决定把餐厅空间做大,一整面墙做酒柜,使整个空间的品质提升,理石材质的餐桌和岛台让空间显得更加整洁大气,餐桌上方的金属材质吊灯更加突显轻奢风格。

孔雀城  270平  现代轻奢 主卧.jpg

主卧室为暖灰色地砖使空间更加明亮大气,温馨程度提升,墙面运用米色与地板生成鲜明的对比,视觉效果更好。主卧采光效果很好,运用落地窗更显空间宽敞明亮,落地窗旁配有休闲区,其中理石边几更突显主题风格。

孔雀城  270平  现代轻奢 卫生间.jpg

卫生间采用灰白色纹路墙砖和地砖搭配深灰色浴室柜,加上金色把手和金属边框挂画让空间颜色更加饱满。

孔雀城  270平  现代轻奢 厨房.jpg 孔雀城  270平  现代轻奢 阳台.jpg 孔雀城  270平  现代轻奢 男孩房.jpg 孔雀城  270平  现代轻奢 女儿房.jpg

两间儿童房,一间主题为小女孩喜欢的粉色系衣柜凹到墙里,整个空间更板正,一间主题为小男孩的蓝色系,床头背景墙挂了星球元素壁灯更加活泼,屋内儿童床和家具都采用天然环保的木材,更为孩子健康考虑,一些金属元素的配饰更能呼应轻奢主题。

孔雀城  270平  现代轻奢 茶室.jpg 孔雀城  270平  现代轻奢 休闲.jpg

茶室是暖色调,运用原木色家具使空间更温馨,更能渲染氛围,闲暇之余可以和朋友一起喝茶聊天。

孔雀城  270平  现代轻奢 衣帽间.jpg

衣帽间配饰多为金属元素,橙色皮质单椅是整个空间的亮色,更能突显轻奢主题风格。

孔雀城  270平  现代轻奢 负一户型图.jpg

案例设计师

白涵琦

设计师:白涵琦

从业时间:10年

设计理念:设计实现客户家居梦想

预约设计师

算算你家装修多少钱

报名即享丰厚赠品,享半价装修

免费报价
咨询热线:400-656-9909
20190221103704574636.jpg

精品设计案例

20180612134930523248.jpg 服务号二维码.jpg