立即预约 立即预约
免费定制整装家居

免费定制整装家居

一站置家 全程无忧 一省到底
hide.png

当前位置: 首页 > 装修案例效果图 > 华润二十四城

华润二十四城 100平 美式风格效果图

收藏
案例风格 美式 案例户型 二居 案例面积 100平米
楼盘名称 华润二十四城 设计师 林凤设计师 案例类型 改善性住宅

设计理念:本案例定位为简美风格,为了整体空间大小,家具主要采用套色系的柜体搭配,我们结合业主的想法及生活需要,在空间上多用些色彩这样空间上更有感觉。

客厅
第1张
第2张
第3张
第4张
餐厅
第1张
第2张
第3张
第4张
第5张
卧室
第1张
卫生间
第1张
厨房
第1张
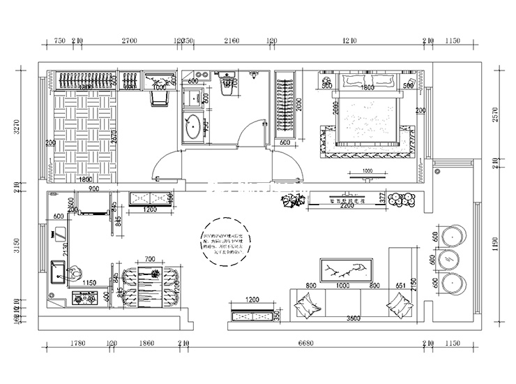
户型图
第1张
  • 案例详情

华润二十四城-100平-简美风格-客厅1.jpg 华润二十四城-100平-简美风格-客厅2.jpg 华润二十四城-100平-简美风格-客厅3.jpg 华润二十四城-100平-简美风格-客厅4.jpg

客厅我们采用灰色系亚光地板,电视背景墙的一抹绿色无疑是给空间增加了自然的色彩。简单的棚顶装饰线也给空间带来了挺拔感。

华润二十四城-100平-简美风格-餐厅1.jpg 华润二十四城-100平-简美风格-餐厅-2.jpg 华润二十四城-100平-简美风格-餐厅3.jpg 华润二十四城-100平-简美风格-餐厅2.jpg 华润二十四城-100平-简美风格-餐厅4.jpg

餐厅的背景墙是与电视背景墙一体刷的绿色,这样更具有连贯感。

华润二十四城-100平-简美风格-卧室.jpg

由于业主的父母偶尔也会经常过来带带孩子,为了老年人的身体与孩子的成长,所以我们一致决定在卧室里做一组榻榻米,因为榻榻米的材质稍硬些而其具有大量的储纳空间,所以受到人们的喜爱。

华润二十四城-100平-简美风格-卫生间.jpg

这里我们大胆的采用了黑色系瓷砖但我们一点也没有感觉到很暗,相反的让我们感觉到这个卫生间的与众不同并且更具有时尚与神秘感。

华润二十四城-100平-简美风格-厨房.jpg

厨房说大不大说小不小,我们采用U型橱柜,冰箱与烤箱都归纳到了这里,这样业主在这里操作起来非常方便。

华润二十四城-100平-简美风格-布局图.jpg

案例设计师

林凤设计师

设计师:林凤设计师

从业时间:13年

设计理念:一切随心,用心去感悟空间

预约设计师

算算你家装修多少钱

报名即享丰厚赠品,品质装修

免费报价
咨询热线:400-656-9909
20190221103704574636.jpg

精品设计案例

20180612134930523248.jpg 服务号二维码.jpg