立即预约 立即预约
免费定制整装家居

免费定制整装家居

一站置家 全程无忧 一省到底
hide.png

当前位置: 首页 > 装修案例效果图 > 碧桂园繁华里

碧桂园繁华里 98平 现代简约风格效果图

收藏
案例风格 现代简约 案例户型 二居 案例面积 98平米
楼盘名称 碧桂园繁华里 设计师 林凤设计师 案例类型 改善性住宅

设计理念:本案例定位为现代轻奢风格,家具主要采用复古绿和黄铜理石,首先先考虑实用性在考虑美观。

碧桂园繁华里-98平-现代轻奢-背景墙.jpg 碧桂园繁华里-98平-现代轻奢-客厅 (2).jpg 碧桂园繁华里-98平-现代轻奢-客厅-(3).jpg 碧桂园繁华里-98平-现代轻奢-客厅.jpg 碧桂园繁华里-98平-现代轻奢-客厅-(4).jpg 碧桂园繁华里-98平-现代轻奢-沙发背景墙.jpg

客厅我们采用暖色瓷砖,沙发背景利用石膏线条使整个空间更立体,更上档次,沙发用高级灰色来使空间更和谐。

碧桂园繁华里-98平-现代轻奢-餐厅 (2).jpg 碧桂园繁华里-98平-现代轻奢-餐厅.jpg 碧桂园繁华里-98平-现代轻奢-客卧.jpg 碧桂园繁华里-98平-现代轻奢-主卧 (2).jpg 碧桂园繁华里-98平-现代轻奢-主卧 (3).jpg 碧桂园繁华里-98平-现代轻奢-主卧.jpg

主卧室说明:卧室重点在于灯光,明居暗室,主卧室采用蓝绿色系,即又神秘又高档,只有在床头背景墙的位置我们选用了绿植壁纸,使空间灵动神秘,好像置身于自然。 次卧室说明:卧室重点在于定制类的格局设计,实用又温馨,看上去即简约而不简单。

碧桂园繁华里-98平-现代轻奢-卫生间.jpg

卫生间采用水泥砖,和花片相搭配,地连墙的设计使空间更有延伸感。

碧桂园繁华里-98平-现代轻奢-厨房.jpg

厨房的面积也不是很大,首先先使这个空间布局合理,充分的实现出洗、切、炒。要在空间上更加有储物空间。

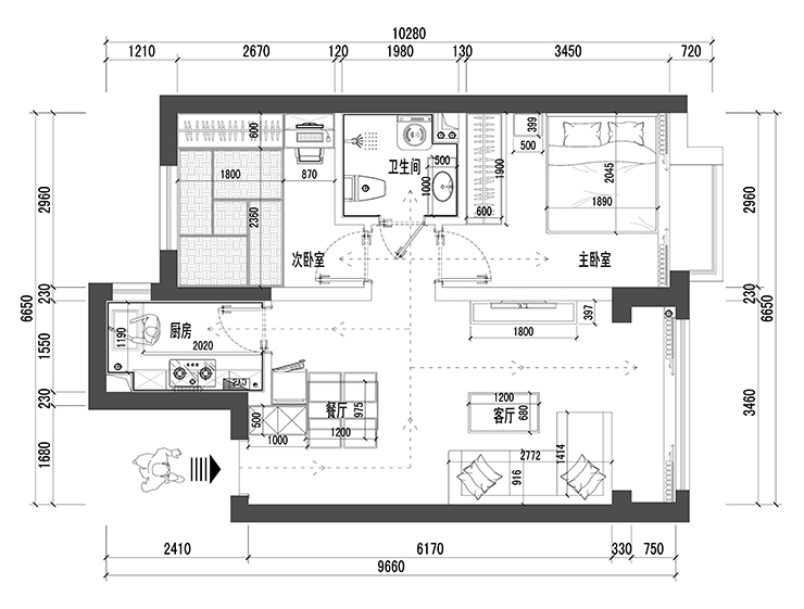
碧桂园繁华里-98平-平面图.jpg

案例设计师

林凤设计师

设计师:林凤设计师

从业时间:10年

设计理念:室内设计是是人与环境的联系,是人类艺术与物质文明的结合

预约设计师

算算你家装修多少钱

报名即享丰厚赠品,品质装修

免费报价
咨询热线:400-656-9909
20190221103704574636.jpg

精品设计案例

20180612134930523248.jpg 服务号二维码.jpg