立即预约 立即预约
免费定制整装家居

免费定制整装家居

一站置家 全程无忧 一省到底
hide.png

当前位置: 首页 > 装修案例效果图 > 中海和平之门

中海和平之门 97平 北欧风格效果图

收藏
案例风格 北欧 案例户型 三居 案例面积 97平米
楼盘名称 中海和平之门 设计师 林凤装饰设计师 案例类型 婚房

设计理念:此案设计中采用的是北欧风格,整体色调浅色为主,在家具和饰品上面也简简单单的,去繁留简的特点。家具流畅的线条让人有一种回归自然的感觉。柔和的色彩,天然的纹理融入到家具的里面,展现一种朴素,清新的北欧特点。

客厅
第1张
餐厅
第1张
第2张
卧室
第1张
第2张
第3张
卫生间
第1张
厨房
第1张
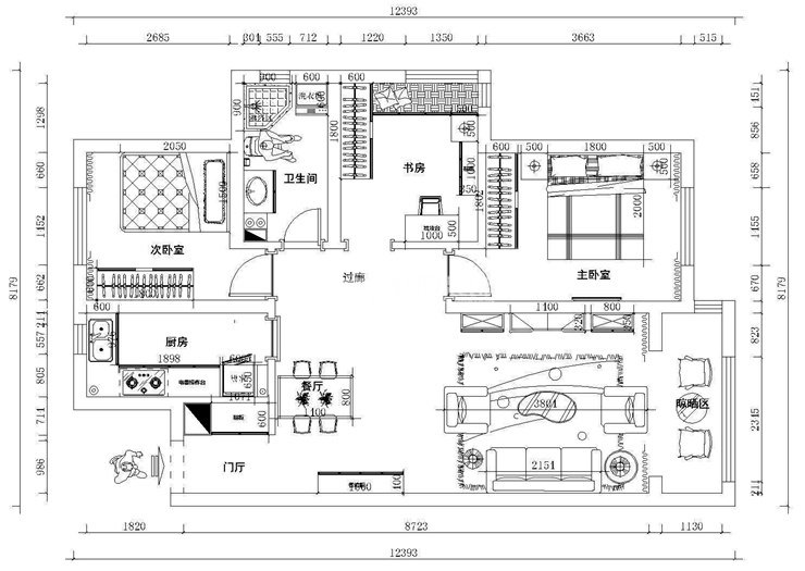
户型图
第1张
  • 案例详情

中海和平之门-97平-北欧风格-客厅.jpg

客厅整体墙面颜色采用的是天蓝色,沙发是灰色的布艺沙发,电视柜和茶几都选用的是原木色,和墙体的颜色呼应。沙发的背景墙挂画和茶几上面的绿植颜色呼应。突出了北欧风格的简单柔和特点。

中海和平之门-97平-北欧风格-餐厅.jpg 中海和平之门-97平-北欧风格-餐厅2.jpg

餐厅中餐桌和摆放位置,让空间的行走动线更加流畅,餐厅和厨房紧挨着,由于厨房空间有限,所以在设计的时候就选用了谷仓门,谷仓门的平面上运用黑白涂鸦的画面,同时也能当做餐厅的背景墙,一举两得。

中海和平之门-97平-北欧风格-主卧室.jpg 中海和平之门-97平-北欧风格-电视背景墙.jpg 中海和平之门-97平-北欧风格-沙发背景墙.jpg

主卧室墙面是灰色,搭配原木色的床,和墙面上的绿色挂画,让人有一种清新自然的感觉,在格局上也让人很舒服。灯光的设计也是突出了整体的卧室亮点,在休息时看书也不影响旁边人的休息。

中海和平之门-97平-北欧风格-卫生间.jpg

由于两个人平时上班忙,所以在设计的时候,整体采用的是浅色,浅灰色的墙砖搭配黑色的浴室柜搭配黑色的五金挂件,再搭配白色的坐便和洗衣机,整体色调上面很呼应。在格局上面使用上也很方便。

中海和平之门-97平-北欧风格-厨房.jpg

考虑是两个人居住,而且两个人也不经常开火,所以把冰箱放在厨房里面,根据人体工程学,在空间布局上面用起来很方便。颜色上面也简单明亮,白色的橱柜 搭配原木色的理石台面和浅灰的墙砖,让整理厨房看着干净,不想想象中油光锃亮的感觉。

中海和平之门-97平-北欧风格-平面图.jpg

案例设计师

林凤装饰设计师

设计师:林凤装饰设计师

从业时间:6年

设计理念:源于生活,生活因设计而改变!

预约设计师

算算你家装修多少钱

报名即享丰厚赠品,享半价装修

免费报价
咨询热线:400-656-9909
20190221103704574636.jpg

精品设计案例

20180612134930523248.jpg 服务号二维码.jpg