立即预约 立即预约
免费定制整装家居

免费定制整装家居

一站置家 全程无忧 一省到底
hide.png

当前位置: 首页 > 装修案例效果图 > 顶盛国际花园

顶盛国际花园 86平 日式风格效果图

收藏
案例风格 日式 案例户型 二居 案例面积 86平米
楼盘名称 顶盛国际花园 设计师 林凤设计师 案例类型 婚房

设计理念:日式风格为主,简单的硬装石膏线, 家具以其清新自然、简洁的独特品味体现出整体空间淡雅、简洁。

客厅
第1张
餐厅
第1张
卧室
第1张
卫生间
第1张
厨房
第1张
门厅
第1张
过廊
第1张
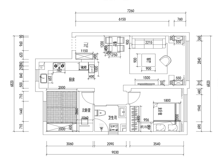
户型图
第1张
  • 案例详情

顶盛国际花园-86平-日式风格-客厅.jpg

客厅电视背景墙和沙发背景墙做的叠级石膏线设计,沙发背景采用的是很有意境的挂画设计,电视背景墙喷涂深灰色乳胶漆,是整体空间立体感更加强烈一些,个性一些。在家具、地板与隔断的材料上也特别注重自然质感。客厅整体设计强调的是自然色彩的沉静和造型线条的简洁,给人宽敞明亮的感觉。

顶盛国际花园-86平-日式风格-餐厅.jpg

餐厅的墙面背景硬装与客厅的样式线条是一致的,在餐厅背景墙上设计了两个简单的置物隔板, 摆放上几只枯枝,白色瓷瓶,宁静自然之感立即体现。

顶盛国际花园-86平-日式风格-主卧室.jpg

卧室大面积为白色的乳胶漆,床头背景简单的悬挂了富有日本文化的挂画,整体家具的颜色材质与客厅一致.都是原木色系。使空间效果具有冷静的、光滑的既视感。

顶盛国际花园-86平-日式风格-卫生间.jpg

卫生间做了拉门设计.整体空间更宽敞明亮.灰色的墙地砖配以原木浴室柜清新,自然,个性.

顶盛国际花园-86平-日式风格-厨房.jpg

把厨房向厅里延伸了一些.这样设计既解决了没有玄关的困境又使厨房空间大了一些,这样客户的吧台需求得以完美解决。可谓一石三鸟。

顶盛国际花园-86平-日式风格-玄关.jpg 顶盛国际花园-86平-日式风格-过廊.jpg 顶盛国际花园-86平-日式风格-平面图.jpg

案例设计师

林凤设计师

设计师:林凤设计师

从业时间:3年

设计理念:设计是一种感受、一种心态、一种舒适的、开心的生活方式。

预约设计师

算算你家装修多少钱

报名即享丰厚赠品,享半价装修

免费报价
咨询热线:400-656-9909
20190221103704574636.jpg

精品设计案例

20180612134930523248.jpg 服务号二维码.jpg