立即预约 立即预约
免费定制整装家居

免费定制整装家居

一站置家 全程无忧 一省到底
hide.png

当前位置: 首页 > 装修案例效果图 > 伯爵世家

伯爵世家 106平 现代简约风格效果图

收藏
案例风格 现代简约 案例户型 三居 案例面积 106平米
楼盘名称 伯爵世家 设计师 林凤装饰设计师 案例类型 改善性住宅

设计理念:客户为刚结婚的年轻人喜欢褐色与黑理石玫瑰金条勾勒出简约时尚区别于传统的暖色风格。房子是用作婚房设计主题围绕着经典奢华黑色的理石金色低调特点,新颖来设计营造出轻奢风格。

客厅
第1张
第2张
第3张
餐厅
第1张
卧室
第1张
卫生间
第1张
门厅
第1张
第2张
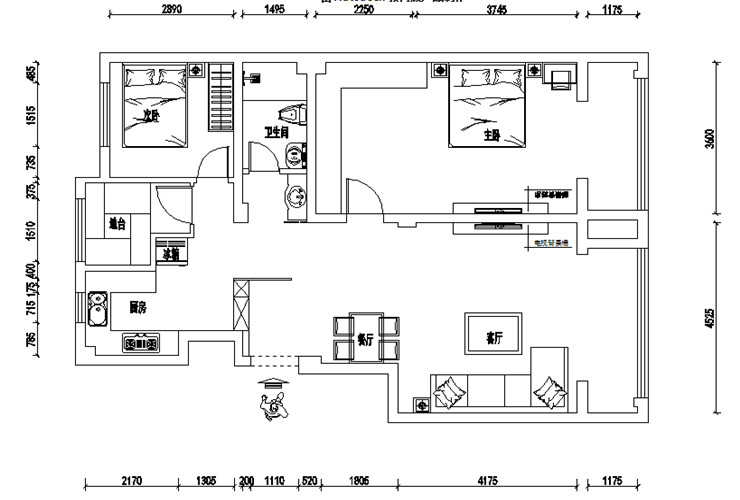
户型图
第1张
  • 案例详情

伯爵世家-116平-轻奢风格-客厅.jpg 伯爵世家-116平-轻奢风格-客厅3.jpg 伯爵世家-116平-轻奢风格-客厅2.jpg

客厅电视背景墙设计黑色金华纹理 与客厅黑色大地砖石交相呼应 再加上 边缘客厅圈线受边 与吊棚设计为叠级吊棚加金色钢条 一致 体现了整体的线条形和立体感 增加了 金色元素和轻奢质感。

伯爵世家-116平-轻奢风格-餐厅.jpg

餐厅空间采用明亮的金色灯饰和橙色的凳子装饰 搭配深色实木色调的餐桌餐椅 整体黑暗 简洁个性的风格 再加上进户玄关鞋柜的设计 柜体颜色选用和厨房一样的灰色实木系列 再加上 金色的玄关设计 与客厅的棚线交相呼应。

伯爵世家-116平-轻奢风格-榻榻米.jpg

卧室空间在卧室床头背景采用黑白简约画框呈现出简约时尚的感觉 榻榻米采用浅木色和白色搭配 摒弃老式榻榻米的沉闷

伯爵世家-116平-轻奢风格-干湿分离.jpg 伯爵世家-116平-轻奢风格-进户玄关.jpg 伯爵世家-116平-轻奢风格-玄关.jpg 伯爵世家-116平-轻奢风格-平面图.jpg

案例设计师

林凤装饰设计师

设计师:林凤装饰设计师

从业时间:4年

设计理念:突破固有思维 ,设计为设计添彩

预约设计师

算算你家装修多少钱

报名即享丰厚赠品,享半价装修

免费报价
咨询热线:400-656-9909
20190221103704574636.jpg

精品设计案例

20180612134930523248.jpg 服务号二维码.jpg