立即预约 立即预约
免费定制整装家居

免费定制整装家居

一站置家 全程无忧 一省到底
hide.png

当前位置: 首页 > 装修案例效果图 > 龙湖天宸原著

龙湖天宸原著 148平 新中式风格效果图

收藏
案例风格 新中式 案例户型 三居 案例面积 148平米
楼盘名称 龙湖天宸原著 设计师 林凤设计师 案例类型 改善性住宅

设计理念:本案整体设计为新中式风格。家具配饰造型等都以深色木纹,檀木颜色为主,在大体中式风格的基础上,从中融入进现代轻奢的金属边框,线条等,整体效果即有中式的稳重又有轻奢的感觉。是一种生活仪式感较强的风格。

客厅
第1张
第2张
餐厅
第1张
卧室
第1张
第2张
卫生间
第1张
厨房
第1张
阳台
第1张
休闲区
第1张
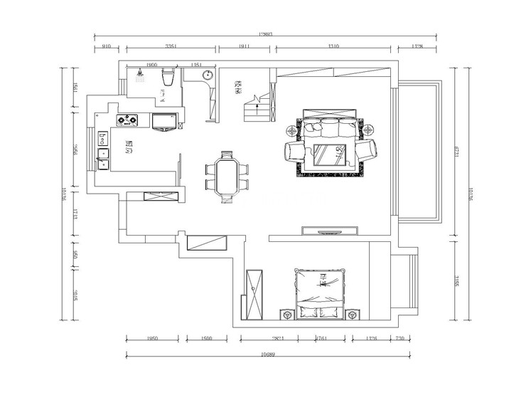
户型图
第1张
龙湖天宸原著-148平-新中式风格-客厅.jpg 龙湖天宸原著-148平-新中式风格-首图.jpg

客厅开间较一般户型要大,所以在沙发后面设计了一个多功能区域,整面墙的装饰柜,既起到装饰作用又有储物功能,也可在沙发后放置一个小书桌。

龙湖天宸原著-148平-新中式风格-餐厅.jpg

餐厅与客厅相连,并没有作单独的餐厅,这样设计不仅空间更宽敞,厨房空间也能更大,整体不显得拘谨,约束。

龙湖天宸原著-148平-新中式风格-卧室.jpg 龙湖天宸原著-148平-新中式风格-主卧.jpg

卧室同样充满了新中式元素,例如床头背景墙和床榻等,没有过多的装饰性挂件等,整体显得更稳重,窗户旁设计了错级的书桌和矮飘窗。空间感更强。

龙湖天宸原著-148平-新中式风格-卫生间.jpg

一楼卫生间采用干湿分离,柜体定制弧形,因为干区开放,所以在柜体上设计了些小亮点,二楼卫生间则是利用空间巧妙的规划出一个浴缸的位置。

龙湖天宸原著-148平-新中式风格-厨房.jpg

厨房采用拉门,增加采光与通透性,橱柜整体U型,将空间利用最大化,操作台面足够使用。

龙湖天宸原著-148平-新中式风格-阳台.jpg 龙湖天宸原著-148平-新中式风格-休息区.jpg 龙湖天宸原著-148平-新中式风格-平面图.jpg

案例设计师

林凤设计师

设计师:林凤设计师

从业时间:13年

设计理念:无论含蓄还是奢华,能贴合主人味道,传达主人性格的房子才是我所追求的设计

预约设计师

算算你家装修多少钱

报名即享丰厚赠品,品质装修

免费报价
咨询热线:400-656-9909
20190221103704574636.jpg

精品设计案例

20180612134930523248.jpg 服务号二维码.jpg