立即预约 立即预约
免费定制整装家居

免费定制整装家居

一站置家 全程无忧 一省到底
hide.png

当前位置: 首页 > 装修案例效果图 > 美的城

美的城 105平 现代简约风格效果图

收藏
案例风格 现代简约 案例户型 三居 案例面积 105平米
楼盘名称 美的城 设计师 林凤装饰设计师 案例类型 改善性住宅

设计理念:客户比较喜欢现代简约风格的家具配饰,所以在硬装基础方面,采用了一种灰色与金属色作为主色调和元素,让整个空间能与后期的家具相配的更加协调,金属元素的使用,也使得整个空间显得更加有质感,和活力。

客厅
第1张
第2张
第3张
第4张
卧室
第1张
第2张
卫生间
第1张
厨房
第1张
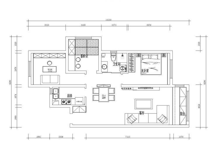
户型图
第1张
  • 案例详情

美的城-105平-现代风格-客厅 (2).jpg 美的城-105平-现代风格-客厅 (3).jpg 美的城-105平-现代风格-客厅 (4).jpg 美的城-105平-现代风格-客厅.jpg

淡灰色的地砖,在和金属元素的碰撞下,更是产生了一种,奇妙的化学反应,让整个空间看起来更加的温暖,由于在过廊位置比较宽敞,所以在过廊区域做了一个垭口,做了空间的划分,为了让空间显得不那么空荡,在垭口的位置采用了一个薄柜作为遮挡,让整个空间显得没那么拥挤,也没那么空。

美的城-105平-现代风格-主卧室.jpg 美的城-105平-现代风格-客卧室.jpg

小卧室的空间需求,只是他们2岁女儿的游乐场和学习的地方,考虑到以后女儿的成长,设计师并没有采用粉嫩嫩的颜色为主,反而以原木色,白色成为点亮整个空间的最好看的颜色,让孩子,从小感觉到的就是树木的温和,白色的纯净。

美的城-105平-现代风格-卫生间.jpg 美的城-105平-现代风格-厨房.jpg

厨房的使用空间相对较小,但是也有4平面积也是够用的,所以在厨房这一空间里,也没做什么太大改动,就正常采用了L形橱柜,留下来足够的操作台,在颜色上,设计师完全建议白色的橱柜让整个厨房的空间显得更加干净整洁

美的城-105平-现代风格-平面布置.jpg

案例设计师

林凤装饰设计师

设计师:林凤装饰设计师

从业时间:11年

设计理念:处处是细节的家,应该处处用心

预约设计师

算算你家装修多少钱

报名即享丰厚赠品,品质装修

免费报价
咨询热线:400-656-9909
20190221103704574636.jpg

精品设计案例

20180612134930523248.jpg 服务号二维码.jpg