立即预约 立即预约
免费定制整装家居

免费定制整装家居

一站置家 全程无忧 一省到底
hide.png

当前位置: 首页 > 装修案例效果图 > 绿城全运村

绿城全运村 143平 新中式风格效果图

收藏
案例风格 新中式 案例户型 四居 案例面积 143平米
楼盘名称 绿城全运村 设计师 林凤装饰设计师 案例类型 改善性住宅

设计理念:把客人的需求,转化成事实,着重沟通,了解客人的需求,创造出实用及美学并重的全新空间。

客厅
第1张
第2张
第3张
餐厅
第1张
第2张
卧室
第1张
卫生间
第1张
厨房
第1张
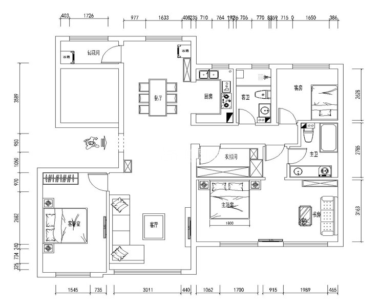
户型图
第1张
  • 案例详情

绿城全运村-143平-新中式-客厅.jpg 绿城全运村-143平-新中式-客厅2.jpg 绿城全运村-143平-新中式-客厅3.jpg

最受客人关注的地方就是客厅,所以在客厅的设计上考虑的因素非常多,吊棚选用的是直线边棚以及虚光灯带,用金属条收边,非常的大气有质感,在光源上也大大的提升,电视背景墙采用的对称形式,中间壁纸的图案是树枝叶,,沙发背景墙是石材上墙,浓浓的体现了新中式的韵味。

绿城全运村-143平-新中式-餐厅.jpg 绿城全运村-143平-新中式-餐厅2.jpg

餐厅是一家人吃饭的地方,由于本户型的餐厅区域面积较大,所以这个方案采用的是六人位的大餐桌,这样显得餐厅区域大方得体,来朋友聚餐的时候也足够宽敞,吊棚同样采用的是直线边棚金属条收边,通过过廊区域的造型棚将客餐厅区域分开,与客厅的搭配相呼应,整个空间一致得体。

绿城全运村-143平-新中式-卧室.jpg

卧室是人生度过三分之一时光的场所,摄气养神,均在于此,所以设计一个好的卧室至关重要。一般在设计时要体现出静谧舒适 的感觉,并且与其他空间明显的区别,要让业主感觉到轻松愉快。

绿城全运村-143平-新中式-卫生间.jpg

户型主卫生间面积较大,可以满足卫生间所有的需求,摆放浴缸,业主在一天的忙碌之后可以在家泡澡,极大的方便了业主的生活。业主定制连体柜,也增加了储物空间,洗衣机上方可以摆放洗漱用品。

绿城全运村-143平-新中式-厨房.jpg

厨房的多西较多,设计出U行橱柜,厨房所用到的电器较多,所以要多留一些插座,合理的安排每一种电器的位置,本方案的冰箱放在外面,这样就提升了橱柜的使用面积,敞开式厨房,门口留大,不影响后期安装推拉门。

绿城全运村-143平-新中式-平面图.jpg

案例设计师

林凤装饰设计师

设计师:林凤装饰设计师

从业时间:11年

设计理念:艺术的手法,以人为本

预约设计师

算算你家装修多少钱

报名即享丰厚赠品,品质装修

免费报价
咨询热线:400-656-9909
20190221103704574636.jpg

精品设计案例

20180612134930523248.jpg 服务号二维码.jpg