立即预约 立即预约
免费定制整装家居

免费定制整装家居

一站置家 全程无忧 一省到底
hide.png

当前位置: 首页 > 装修案例效果图 > 沈阳国瑞城

沈阳国瑞城 130平 现代简约风格效果图

收藏
案例风格 现代简约 案例户型 三居 案例面积 130平米
楼盘名称 沈阳国瑞城 设计师 林凤设计师 案例类型 婚房

设计理念:采用简单并且充满设计感的现代风格,色调运用黑白灰烘托出干净且不单调的氛围。

客厅
第1张
第2张
餐厅
第1张
第2张
卧室
第1张
第2张
第3张
第4张
卫生间
第1张
门厅
第1张
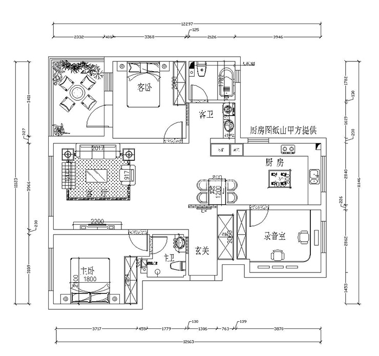
户型图
第1张
  • 案例详情

沈阳国瑞城-130平-现代风格-客厅1.jpg 沈阳国瑞城-130平-现代风格-首图.jpg

客厅采用灰色沙发,背景为酒柜,简单又时尚,业主喜欢个性元素,天花则采用穹顶搭配玻璃吊灯。

沈阳国瑞城-130平-现代风格-餐厅1.jpg 沈阳国瑞城-130平-现代风格-餐厅2.jpg

墙面全部为灰色,餐桌则使用了白色,结合黑白相间的餐椅显得格外干净且温馨。

沈阳国瑞城-130平-现代风格-主卧1.jpg 沈阳国瑞城-130平-现代风格-主卧2.jpg 沈阳国瑞城-130平-现代风格-客卧1.jpg 沈阳国瑞城-130平-现代风格-客卧2.jpg

黑色玻璃门衣柜与黑色布艺床相结合,简单干净又充满时尚感。床头天花的虚光充满个性。

沈阳国瑞城-130平-现代风格-卫生间.jpg

黑色玻璃门衣柜与黑色布艺床相结合,简单干净又充满时尚感。床头天花的虚光充满个性。

沈阳国瑞城-130平-现代风格-玄关.jpg

一进门,便是玄关,浅灰色鞋柜搭配金色点缀让整个区域更有层次感,时尚感,挂画使空间丰富。

沈阳国瑞城-130平-现代风格-平面布置图.jpg

案例设计师

林凤设计师

设计师:林凤设计师

从业时间:6年

设计理念:化繁为简,以简驭繁。

预约设计师

算算你家装修多少钱

报名即享丰厚赠品,享半价装修

免费报价
咨询热线:400-656-9909
20190221103704574636.jpg

精品设计案例

20180612134930523248.jpg 服务号二维码.jpg