立即预约 立即预约
免费定制整装家居

免费定制整装家居

一站置家 全程无忧 一省到底
hide.png

当前位置: 首页 > 装修案例效果图 > 五矿世家

五矿世家 120平 现代简约风格效果图

收藏
案例风格 现代简约 案例户型 三居 案例面积 120平米
楼盘名称 五矿世家 设计师 林凤装饰设计师 案例类型 婚房

设计理念:现代简约风格是以简约为主体的,简约风格是一种高层次的创作设计。在设计方面,更加强调功能,结构和形式的完整,更追求材料、技术、空间的表现深度与精确

客厅
第1张
餐厅
第1张
卧室
第1张
第2张
卫生间
第1张
第2张
厨房
第1张
书房
第1张
衣帽间
第1张
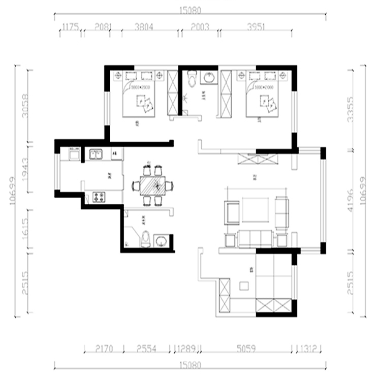
户型图
第1张
  • 案例详情

五矿世家-120平-现代简约风格-首图.jpg

客厅在家具配置上,白亮光系列家具,独特的光泽使家具倍感时尚,具有舒适与美观并存的享受。在配饰上,延续了主色调,灰色皮质沙发以简洁的造型、完美的细节,营造出时尚前卫的感觉。

五矿世家-120平-现代简约风格-餐厅.jpg

餐厅区域,与吊灯相呼应。在设计时注重的整体规划,给予业主更舒适的生活感受。

五矿世家-120平-现代简约风格-卧室1.jpg 五矿世家-120平-现代简约风格-卧室2.jpg

卧室以原木色的床和地板为空间营造舒适安心的氛围,非常适宜,墙壁上的抽象挂画,空间内的别致绿植摆件,让人眼前一亮,一切都是令人舒服的色调,卧室内所有的家具和装饰都采用了低色调系,为的是不打破空间自然的氛围,以营造视觉上的平衡。

五矿世家-120平-现代简约风格-卫生间2.jpg 五矿世家-120平-现代简约风格-卫生间1.jpg

卫生间区域以白色基调为主,卫生间里的玻璃隔断很好的起到了干湿分离的作用,活跃了空间明亮度,显得很好看,搭配棕黑大理石台盆柜子,不适宜用过多色彩搭配,家庭的简约不只是说装修,还反映在家居配饰上的简约,在卫生间区域就不必装饰的过于复杂。

五矿世家-120平-现代简约风格-厨房.jpg

改造后的厨房,没有了原始逼仄的狭小空间,可以让每日料理得到最大程度的发挥。厨房以灰色搭配木质橱柜感觉很高尚也不杂乱。给人一种沉稳安逸的视觉效果。为了使厨房不显得拥挤,杂乱,设计师在储物功能方面结合厨房电器统一考虑设计出满足客户需求的储藏柜以及收纳柜。

五矿世家-120平-现代简约风格-书房.jpg 五矿世家-120平-现代简约风格-衣帽间.jpg 五矿世家-120平-现代简约风格-平面布局图.jpg

案例设计师

林凤装饰设计师

设计师:林凤装饰设计师

从业时间:7年

设计理念:专注设计 坚持情怀。

预约设计师

算算你家装修多少钱

报名即享丰厚赠品,享半价装修

免费报价
咨询热线:400-656-9909
20190221103704574636.jpg

精品设计案例

20180612134930523248.jpg 服务号二维码.jpg