立即预约 立即预约
免费定制整装家居

免费定制整装家居

一站置家 全程无忧 一省到底
hide.png

当前位置: 首页 > 装修案例效果图 > 中冶上和郡

中冶上和郡 96平 北欧风格效果图

收藏
案例风格 北欧 案例户型 二居 案例面积 96平米
楼盘名称 中冶上和郡 设计师 林凤装饰设计师 案例类型 改善性住宅

设计理念:北欧简约风格,犹如一封来自北欧的情书,文艺而又清新。

客厅
第1张
餐厅
第1张
卧室
第1张
第2张
卫生间
第1张
厨房
第1张
书房
第1张
第2张
过廊
第1张
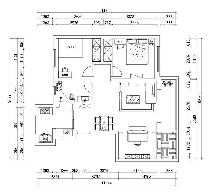
户型图
第1张
  • 案例详情

中冶上和郡-96平-北欧风格-客厅1.jpg

墙面地面以浅灰色调为主,奠定了干净的基调,电视墙两边门的设计,既可以客厅与书房通透的感觉,也可以关上门作为客厅的电视背景墙 两个区域互不耽误。

中冶上和郡-96平-北欧风格-餐厅.jpg

餐区充分做到了空间与家具间的协调,颜色与颜色间的交融。浅灰色的墙地搭配原木色的餐桌 错乱的艺术挂画,更显整体空间的文艺感。

中冶上和郡-96平-北欧风格-卧室1.jpg 中冶上和郡-96平-北欧风格-主卧室2.jpg

主卧非常清爽,灰色墙面,蓝色床品,营造出舒适的睡眠环境。

中冶上和郡-96平-北欧风格-卫生间.jpg

卫生间采用浅色系元素 搭配白色卫浴,合理的空间布局让使用更加方便。

中冶上和郡-96平-北欧风格-厨房.jpg

黑色面包砖与绿色花片地面的时尚搭配,让原本大家都不喜欢进厨房做饭的人 会瞬间爱上这里,仿佛这里是用来享受的,并不是充满了油烟的地方。

中冶上和郡-96平-北欧风格-书房.jpg 中冶上和郡-96平-北欧风格-书房2.jpg 中冶上和郡-96平-北欧风格-过廊1.jpg 中冶上和郡-96平-北欧风格-平面.jpg

案例设计师

林凤装饰设计师

设计师:林凤装饰设计师

从业时间:6年

设计理念:设计源于生活,生活因设计而改变。

预约设计师

算算你家装修多少钱

报名即享丰厚赠品,享半价装修

免费报价
咨询热线:400-656-9909
20190221103704574636.jpg

精品设计案例

20180612134930523248.jpg 服务号二维码.jpg