立即预约 立即预约
免费定制整装家居

免费定制整装家居

一站置家 全程无忧 一省到底
hide.png

当前位置: 首页 > 装修案例效果图 > 沈铁家园

沈铁家园 161平 北欧风格效果图

收藏
案例风格 北欧 案例户型 二居 案例面积 161平米
楼盘名称 沈铁家园 设计师 林凤设计师 案例类型 婚房

设计理念:北欧风格,设计色彩鲜艳,柔和,跳跃,主要以木色和白色为主。理念主要以简单,大气,立正为主。

客厅
第1张
餐厅
第1张
第2张
卧室
第1张
卫生间
第1张
厨房
第1张
过廊
第1张
第2张
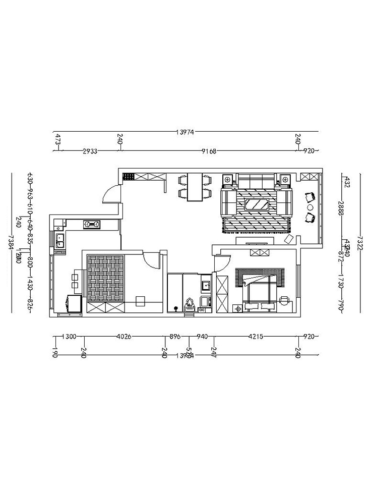
户型图
第1张
  • 案例详情

沈铁家园-116平-北欧风格-客厅1.jpg

客厅整体感觉简单,无吊棚,只用单层石膏宽线来实现墙面与棚面的立体感,尤其是沙发背景,石膏线做完后,加上沙发背景的颜色搭配,立体感强烈,加上家具摆放,空间体现非常完美。

沈铁家园-116平-北欧风格-餐厅1.jpg 沈铁家园-116平-北欧风格-餐厅2.jpg

客厅整体感觉简单,无吊棚,只用单层石膏宽线来实现墙面与棚面的立体感,尤其是沙发背景,石膏线做完后,加上沙发背景的颜色搭配,立体感强烈,加上家具摆放,空间体现非常完美。

沈铁家园-116平-北欧风格-卧室.jpg

厨房风格有点北欧LOFT,墙面的砖纹系列瓷砖与背景墙遥相呼应,上下木色橱柜配搭白色台板,灰色的砖纹瓷砖,给整个风格多添加了一份个性。

沈铁家园-116平-北欧风格-卫生间.jpg

卫生间整体采用白色理石纹理修复北欧的简约美,台盆和洗衣机的空间采用定制类来实现,让台面空间使用率增大了很多,浴屏设计,采用了干湿分离,让卫生间更加洁净。

沈铁家园-116平-北欧风格-厨房.jpg

厨房风格有点北欧LOFT,墙面的砖纹系列瓷砖与背景墙遥相呼应,上下木色橱柜配搭白色台板,灰色的砖纹瓷砖,给整个风格多添加了一份个性。

沈铁家园-116平-北欧风格-过廊1.jpg 沈铁家园-116平-北欧风格-过廊2.jpg 沈铁家园-116平-北欧风格-平面.jpg

案例设计师

林凤设计师

设计师:林凤设计师

从业时间:8年

设计理念:设计界的一股清流,设计走心最重要。

预约设计师

算算你家装修多少钱

报名即享丰厚赠品,品质装修

免费报价
咨询热线:400-656-9909
20190221103704574636.jpg

精品设计案例

20180612134930523248.jpg 服务号二维码.jpg