立即预约 立即预约
免费定制整装家居

免费定制整装家居

一站置家 全程无忧 一省到底
hide.png

当前位置: 首页 > 装修案例效果图 > 奥林匹克花园

奥林匹克花园 217平 现代简约风格效果图

收藏
案例风格 现代简约 案例户型 别墅 案例面积 217平米
楼盘名称 奥林匹克花园 设计师 林凤装饰设计师 案例类型 改善性住宅

设计理念:本案主要设计出发点以体现”空”为主的极简化设计风格为主

客厅
第1张
第2张
第3张
餐厅
第1张
卧室
第1张
第2张
卫生间
第1张
厨房
第1张
休闲区
第1张
第2张
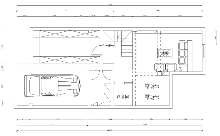
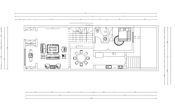
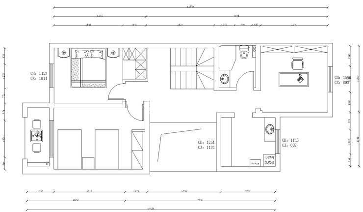
户型图
第1张
第2张
第3张
第4张
  • 案例详情

奥林匹克花园-217㎡-极简风格-客厅1.jpg 奥林匹克花园-217㎡-极简风格-客厅2.jpg 奥林匹克花园-217㎡-极简风格-客厅3.jpg

客厅部分主要的功能就是客厅会客休闲阅读.整体平棚 第一是为了遮盖原始棚顶不平.第二.为了遮盖原始结构中的梁.最主要的设计方向还是围绕”空”。整体客厅位置采用大面留白.灰色辅助色.白色理石作为收口与点缀白色,整体突出空间的空旷与干净。

奥林匹克花园-217㎡-极简风格-餐厅.jpg

餐厅部分为本案中最特殊的一个位置,挑空 六米的高度 可以加深空间的立体感与空旷感 所以 餐厅位置 只用了单色的 水泥灰 一直到顶 ,为了把空间的立体感做的更加突出立体感更强,软装方向选择黑色与白色的几何体做装饰,加深神秘感与空间融合。

奥林匹克花园-217㎡-极简风格-卧室1.jpg 奥林匹克花园-217㎡-极简风格-卧室2.jpg

主卧室空间也相对特殊 坡顶 ,经过几次研讨 最终衡量之后选择封平,主卧室空间在整体格局上做了一些调整做出了几个 切角墙 ,为了 增加空间的 几何感,整体色调还是以白色为主,灰色搭配。黑色点缀,突出 干净 和 空 。

奥林匹克花园-217㎡-极简风格-卫生间.jpg 奥林匹克花园-217㎡-极简风格-厨房.jpg 奥林匹克花园-217㎡-极简风格-地下室.jpg 奥林匹克花园-217㎡-极简风格-地下室2.jpg

地下室空间主要以影音和酒吧休闲为主.把多种功能融合到一起,主要以会客.健身.观影为主.空间整面墙酒柜 具有很大的视觉冲击力,吧台的出现增加了空间的多样性,整体色调白色为主灰色点缀空间。

奥林匹克花园-217㎡-极简风格-平面图1.jpg 奥林匹克花园-217㎡-极简风格-平面图3.jpg 奥林匹克花园-217㎡-极简风格-平面图2.jpg 奥林匹克花园-217㎡-极简风格-平面图4.jpg

案例设计师

林凤装饰设计师

设计师:林凤装饰设计师

从业时间:10年

设计理念:专注设计 坚持情怀。

预约设计师

算算你家装修多少钱

报名即享丰厚赠品,享半价装修

免费报价
咨询热线:400-656-9909
20190221103704574636.jpg

精品设计案例

20180612134930523248.jpg 服务号二维码.jpg