立即预约 立即预约
免费定制整装家居

免费定制整装家居

一站置家 全程无忧 一省到底
hide.png

当前位置: 首页 > 装修案例效果图 > 中海和平之门

中海和平之门 112平 美式风格效果图

收藏
案例风格 美式 案例户型 三居 案例面积 112平米
楼盘名称 中海和平之门 设计师 林凤装饰设计师 案例类型 改善性住宅

设计理念:本案的装修风格属于美式风格,它是以自然,略怀旧,舒适的形态将自己的风格特点呈现给我们。装修上总体给人以朴实、厚重感。本案整体采用深色的木色来做重点颜色,搭配为浅色的乳胶漆及布艺的沙发,尤其是仿古带角花的地砖斜拼,更能彰显出整体设计的不同之处。

客厅
第1张
餐厅
第1张
第2张
卧室
第1张
第2张
第3张
卫生间
第1张
厨房
第1张
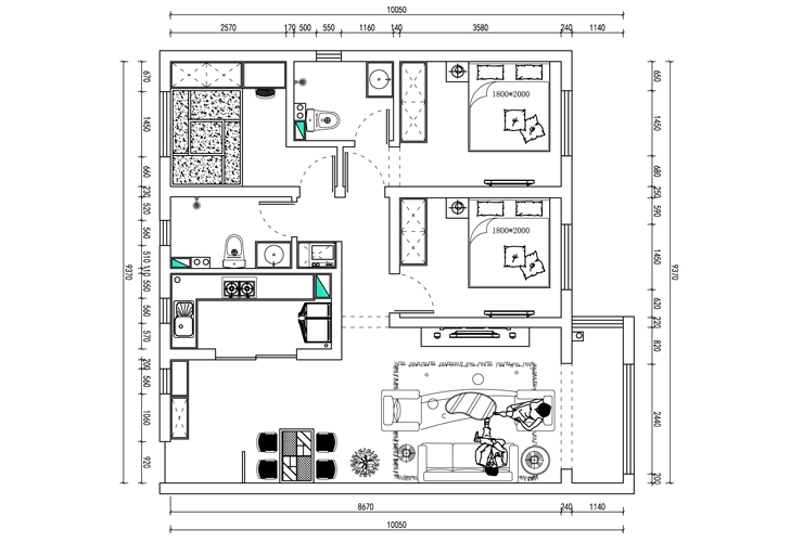
户型图
第1张
  • 案例详情

中海和平之门-112平-美式风格-客厅.jpg

客厅作为待客区域,一般要求简洁明快,同时装修较其它空间要更明快光鲜,客厅的地砖采用600*600斜拼仿古砖,增加美感和艺术感。电视背景墙和沙发背景墙都选用成品的石膏线做装饰,简洁而不失美感。总体而言,美式风格的客厅是宽敞而富有历史气息的。

中海和平之门-112平-美式风格-餐厅1.jpg 中海和平之门-112平-美式风格-餐厅2.jpg

本案餐厅区域根据户型的布局,采用客厅与餐厅一体的设计,给整个空间营造出整体感和空间感,是客厅和餐厅看起来更大,使空间的运用更合理化。

中海和平之门-112平-美式风格-卧室1.jpg 中海和平之门-112平-美式风格-卧室2.jpg 中海和平之门-112平-美式风格-卧室3.jpg

美式家居的卧室布置较为温馨,作为主人的私密空间,主要以功能性和实用舒适为考虑的重点,卧室的棚面,做了一圈石膏线,床头采用经典的美式造型,床头的背景墙用挂画装饰,使单调的墙面丰富一些。

中海和平之门-112平-美式风格-卫生间.jpg

卫生间墙砖、地砖和厨房的墙砖、地砖选用同一种材质,地砖采用灰色调的防滑地砖,墙砖则选用黄色调的大理石纹理的瓷砖与整体的风格相呼应。

中海和平之门-112平-美式风格-厨房.jpg

厨房选用了L字型的设计及方便了活动空间又满足了日常功能性的需求,橱柜选择原木色的门板作为装饰也给简洁的厨房增加了亮点,橱柜在造型上也采用美式风格的造型,整体风格上倾向于美式风格。

中海和平之门-112平-美式风格-户型图.jpg

案例设计师

林凤装饰设计师

设计师:林凤装饰设计师

从业时间:9年

设计理念:用最自由,浪漫的元素来表达灵感。

预约设计师

算算你家装修多少钱

报名即享丰厚赠品,享半价装修

免费报价
咨询热线:400-656-9909
20190221103704574636.jpg

精品设计案例

20180612134930523248.jpg 服务号二维码.jpg