立即预约 立即预约
免费定制整装家居

免费定制整装家居

一站置家 全程无忧 一省到底
hide.png

当前位置: 首页 > 装修案例效果图 > 国瑞城

国瑞城 130平 美式风格效果图

收藏
案例风格 美式 案例户型 三居 案例面积 130平米
楼盘名称 国瑞城 设计师 李丹 案例类型 婚房

设计理念:轻装修重装饰,简单的线条勾勒出,深层次的质感

客厅
第1张
第2张
第3张
第4张
餐厅
第1张
卧室
第1张
卫生间
第1张
厨房
第1张
门厅
第1张
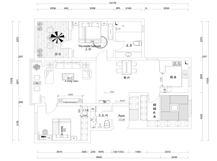
户型图
第1张
  • 案例详情

国瑞城-130平-美式风格-客厅.jpg 国瑞城-130平-美式风格-客厅 (2).jpg 国瑞城-130平-美式风格-电视背景墙.jpg 国瑞城-130平-美式风格-沙发背景墙.jpg

客厅说明:整个客厅以暖黄色为主,深色中增添了一些活力,沙发采用米色,让深色的空间不那么单调。

国瑞城-130平-美式风格-餐厅.jpg

餐厅说明:餐桌采用黑色亮面为主,增添了金色的点缀,配上皮质的餐椅,使整个空间更加大气。

国瑞城-130平-美式风格-卧室.jpg

卧室设计说明:卧室水休息睡眠的地方,用简单的石膏线线条,勾勒出床头背景,空间层次感更加强烈

国瑞城-130平-美式风格-卫生间.jpg

卫生间说明:卫生间是人们经常使用的地方,他也是家里每天都能经常用到的空间,根据业主的喜欢,喜欢深色系比较沉稳的感觉,采用黑色为主。

国瑞城-130平-美式风格-厨房.jpg

厨房:对于厨房的设计,以实用性为主,并没有采用传统美式深色橱柜,而是采用了白色为主,让本身狭小的空间更加宽阔明亮。

国瑞城-130平-美式风格-玄关.jpg 国瑞城-130平-美式风格-平面布置图.jpg

案例设计师

李丹

设计师:李丹

从业时间:5年

设计理念:用我的专业和你的想法,打造专业的家

预约设计师

算算你家装修多少钱

报名即享丰厚赠品,享半价装修

免费报价
咨询热线:400-656-9909
20190221103704574636.jpg

精品设计案例

20180612134930523248.jpg 服务号二维码.jpg