立即预约 立即预约
免费定制整装家居

免费定制整装家居

一站置家 全程无忧 一省到底
hide.png

当前位置: 首页 > 装修案例效果图 > 丽江苑

丽江苑 100平 现代简约风格效果图

收藏
案例风格 现代简约 案例户型 二居 案例面积 100平米
楼盘名称 丽江苑 设计师 林凤设计师 案例类型 婚房

设计理念:当今社会大部分人群都会选择经济实用性住宅来生活,尤其是以新婚住房居多,因为要结婚的年轻人都处在事业的发展期,并且家里刚买房,又要操办婚礼等一系列的消费让普通家庭需要精打细算!新婚房装修对于年轻人还不能太简单,所以既美观又要价位合适是此类设计的重点!

客厅
第1张
第2张
第3张
第4张
餐厅
第1张
第2张
第3张
卧室
第1张
卫生间
第1张
厨房
第1张
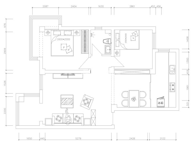
户型图
第1张
  • 案例详情

丽江苑-100平-现代风格-客厅1.jpg 丽江苑-100平-现代风格-客厅2.jpg 丽江苑-100平-现代风格-客厅4.jpg 丽江苑-100平-现代风格-客厅3.jpg

客厅的设计简单大气,每个空间都有设计点,在沙发棚顶做了单边的造型棚,边棚连接到过廊出使整个空间更有联动性,并巧妙的在转角处做了弧形的曲线造型处理,显得转角不那么生硬!然后在背景墙简单的做了一个经典的造型,这样每一面空间都有设计和造型,不需要每个空间都满满的设计,既省钱又美观!

丽江苑-100平-现代风格-餐厅1.jpg 丽江苑-100平-现代风格-餐厅2.jpg 丽江苑-100平-现代风格-餐厅3.jpg

餐厅最大的设计点就是半镶嵌进去一个酒柜,把餐厅最大的空间难题解决了,既美观又实用!

丽江苑-100平-现代风格-卧室.jpg

主卧室就相对来说比较简单了,简单的在床头背景墙贴一面墙壁纸,让整体空间更有层次感,因为卧室不需要太多华而不实的东西,做到温馨舒适才是最主要的!

丽江苑-100平-现代风格-卫生间.jpg

很多人都会问这个卫生间为什么不做推拉门呢?不是空间效果越大越好吗?这里我要强调两点,第一卫生间有窗户,光线和空气流通都非常好。第二点是手盆在门口,最好侧面有墙面遮挡,这样既遮丑又防水!所以多方面考虑建议单开门设计会更适合这个房间!墙砖颜色也是延续了客厅地面石材效果,让整体空间有更好的联动性!

丽江苑-100平-现代风格-厨房.jpg

厨房要干净大方的设计,空间光线要着重考虑,推拉门绝对是首选,宽阔感的空间让年轻人爱上做饭的感觉!

丽江苑-100平-现代风格-平面图.jpg

案例设计师

林凤设计师

设计师:林凤设计师

从业时间:9年

设计理念:细节是基础,专注是根本

预约设计师

算算你家装修多少钱

报名即享丰厚赠品,品质装修

免费报价
咨询热线:400-656-9909
20190221103704574636.jpg

精品设计案例

20180612134930523248.jpg 服务号二维码.jpg