立即预约 立即预约
免费定制整装家居

免费定制整装家居

一站置家 全程无忧 一省到底
hide.png

当前位置: 首页 > 装修案例效果图 > 浑河湾

浑河湾 210平 工业风风格效果图

收藏
案例风格 工业风 案例户型 三居 案例面积 210平米
楼盘名称 浑河湾 设计师 郑婷婷 案例类型 婚房

设计理念:设计师整体设计理念:用设计改变生活,用设计丰富生活。
业主家庭情况及要求:业主是一对年轻情侣,还没有孩子,更加喜欢那种房子宽敞明亮的感觉,家具摆放简洁大方,同时希望家里有足够多的收纳功能。

客厅
第1张
第2张
第3张
第4张
第5张
餐厅
第1张
第2张
第3张
卧室
第1张
第2张
卫生间
第1张
第2张
第3张
第4张
厨房
第1张
书房
第1张
儿童房
第1张
第2张
休闲区
第1张
第2张
衣帽间
第1张
门厅
第1张
过廊
第1张
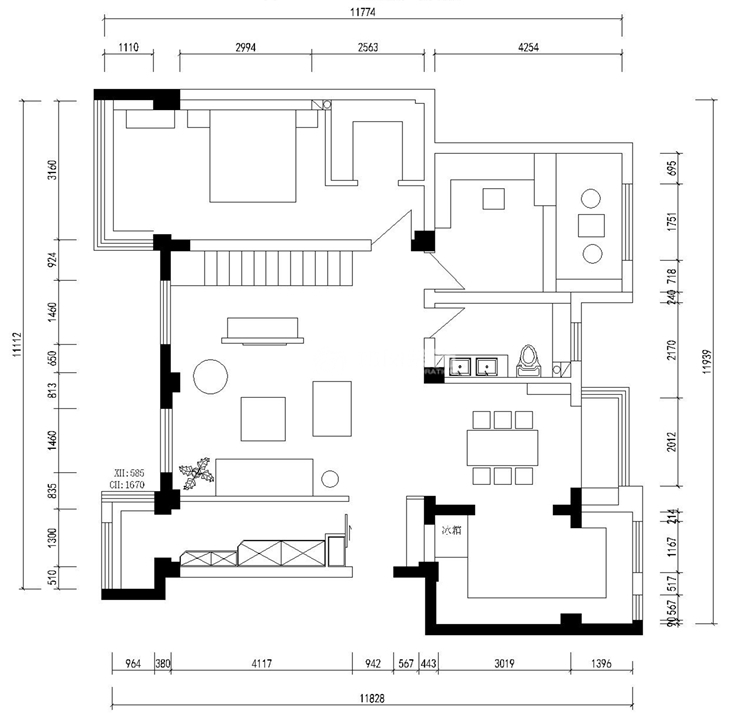
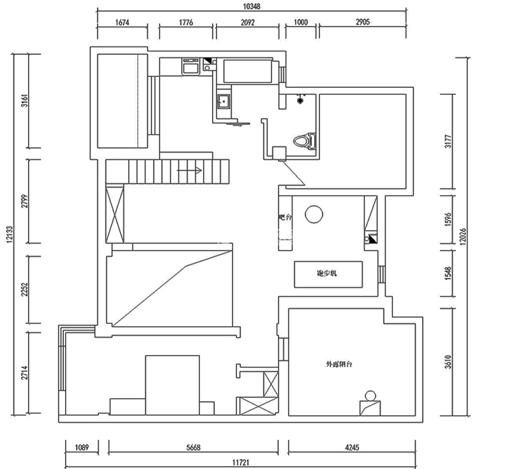
户型图
第1张
第2张
浑河湾-210平-工业风-客餐厅(首图).jpg 浑河湾-210平-工业风-客厅(2).jpg 浑河湾-210平-工业风-客厅(1).jpg 浑河湾-210平-工业风-客厅(3).jpg 浑河湾-210平-工业风-客厅.jpg

客厅顶部采用挑空的形式,可以提高人的视觉效果,使房子看起来大气磅礴,彰显出与众不同的品味。充满艺术感的大挂画与整体空间的设计相呼应,充满大气、独特的韵味。

浑河湾-210平-工业风-餐厅(1).jpg 浑河湾-210平-工业风-餐厅(2).jpg 浑河湾-210平-工业风-餐厅.jpg

餐厅位置采用量身定制的大理石台面餐桌,搭配实木餐椅,通过材质的运用给人一种简洁又不失贵重的质感。餐厅位置设计了一个可以随时挂放照片的地方,既起到了装饰的作用,又能够记忆住家人在一起的美好时光。

浑河湾-210平-工业风-主卧室(1).jpg 浑河湾-210平-工业风-主卧室.jpg

卧室背景墙壁纸与墙面的结合,展现出高低错落的层次感,高级灰与实木家具的结合,展现一种低调的奢华。挂画的选择与床品相呼应,使整个空间完美衔接,毫无违和感。

浑河湾-210平-工业风-二楼卫生间.jpg 浑河湾-210平-工业风-二楼卫生间(1).jpg 浑河湾-210平-工业风-一楼卫生间(1).jpg 浑河湾-210平-工业风-一楼卫生间.jpg 浑河湾-210平-工业风-厨房.jpg 浑河湾-210平-工业风-书房.jpg 浑河湾-210平-工业风-儿童房(1).jpg 浑河湾-210平-工业风-儿童房.jpg

儿童房并没有做复杂的设计及搭配,只需一张床,一个桌子足矣,其余的空间都留给孩子来嬉戏玩耍,让其尽情彰显个性,自由自在成长。

浑河湾-210平-工业风-活动区.jpg 浑河湾-210平-工业风-健身区.jpg 浑河湾-210平-工业风-衣帽间.jpg 浑河湾-210平-工业风-玄关.jpg 浑河湾-210平-工业风-走廊.jpg 浑河湾-210平-工业风-二楼户型图.jpg 浑河湾-210平-工业风-一楼户型图.jpg

案例设计师

郑婷婷

设计师:郑婷婷

从业时间:9年

设计理念:用心与住宅对话,交织出住宅中的灵魂所属

预约设计师

算算你家装修多少钱

报名即享丰厚赠品,品质装修

免费报价
咨询热线:400-656-9909
20190221103704574636.jpg

精品设计案例

20180612134930523248.jpg 服务号二维码.jpg