立即预约 立即预约
免费定制整装家居

免费定制整装家居

一站置家 全程无忧 一省到底
hide.png

当前位置: 首页 > 装修案例效果图 > 府城名邸

府城名邸 135平 美式风格效果图

收藏
案例风格 美式 案例户型 三居 案例面积 135平米
楼盘名称 府城名邸 设计师 林凤设计师 案例类型 改善性住宅

设计理念:设计理念:本案例定位为简美风格,为了整体空间大小,家具主要采用深色实木家具和白色的柜体搭配,并在空间上考虑到户型的情况和业主想法,重点在实用性和储藏空间下了很大的功夫。
业主家庭情况及要求:业主是一对年轻的夫妻,喜欢简单室内空间,色彩也不要太艳丽,尽量好打理些,注重实用性和储藏空间。

  • 案例详情

盛融.万恒府城名邸-135平-简美风格-客厅-首图.jpg 盛融.万恒府城名邸-135平-简美风格-客厅1.jpg 盛融.万恒府城名邸-135平-简美风格-客厅2.jpg 盛融.万恒府城名邸-135平-简美风格-客厅3.jpg

客厅我们采用灰色系亚光瓷砖,电视背景利用石膏线勾勒线条将整个背景墙变得大气自然,沙发背景利用简单淡灰色与地面想呼应,棚顶直接用成品石膏线进行归方,这样墙面与天棚交相辉映,从简至繁。

盛融.万恒府城名邸-135平-简美风格-客卧2.jpg 盛融.万恒府城名邸-135平-简美风格-主卧.jpg 盛融.万恒府城名邸-135平-简美风格-客卧1.jpg

卧室重点在于灯光,明居暗室,主卧室可采用局部的海蓝色,即又神秘又高档,暖白色的图案来呼应整体空间,看上去即活泼又温馨。

盛融.万恒府城名邸-135平-简美风格-卫生间2.jpg 盛融.万恒府城名邸-135平-简美风格-卫生间1.jpg

卫生间内部结构比较合理,我们利用暖色系版瓷砖来装饰卫生间空间,加长版的定制手盆一定会为业主带来更实用方便的生活体验。

盛融.万恒府城名邸-135平-简美风格-厨房2.jpg 盛融.万恒府城名邸-135平-简美风格-厨房1.jpg

开放式的厨房宽敞明亮,这里可以考虑下烤箱蒸箱的选择,为业主提供更好的生活品味与乐趣。

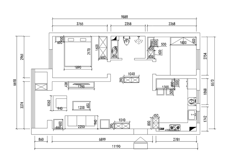
盛融.万恒府城名邸-135平-简美风格-布局图.jpg

案例设计师

林凤设计师

设计师:林凤设计师

从业时间:13年

设计理念:一切随心,用心去感悟空间

预约设计师

算算你家装修多少钱

报名即享丰厚赠品,品质装修

免费报价
咨询热线:400-656-9909
20190221103704574636.jpg

精品设计案例

20180612134930523248.jpg 服务号二维码.jpg