立即预约 立即预约
免费定制整装家居

免费定制整装家居

一站置家 全程无忧 一省到底
hide.png

当前位置: 首页 > 装修案例效果图 > 中海康城

中海康城 82平 北欧风格效果图

收藏
案例风格 北欧 案例户型 二居 案例面积 82平米
楼盘名称 中海康城 设计师 林凤设计师 案例类型 改善性住宅

设计理念:设计理念:
了解到房主是一对工作繁忙的小两口。结合房主的喜好,性格,生活习惯,最终北欧现代落为这个小家的主题。温馨是这个家必须具备的,真正还原家的意义,不再是身体的休息处。此外房主的体型都比较丰满,家具的尺寸,与陈列设计师考虑的也非常贴心。设计师在这个喧闹的城市帮他们打造了一个温馨安静小家。
设计说明:
本案为90㎡两室一厅设计,房主是一对忙碌的小夫妻。当代典型的亚历山大呀。和大多数家庭一样,收纳是一个老大难,这个并不是很大的房子,设计师把两个卧室做成了哆啦A梦般的榻榻米,完美解收纳难题,并且兼具办公功能。房主喜欢钓鱼,门厅嵌入式鞋柜可以吞下钓鱼竿这个庞然大物。

客厅
第1张
第2张
餐厅
第1张
第2张
第3张
第4张
卧室
第1张
第2张
卫生间
第1张
第2张
厨房
第1张
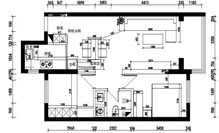
户型图
第1张
  • 案例详情

中海康城-82平-北欧现代风格--客厅.jpg 中海康城-82平-北欧现代风格--首图.jpg

走出玄关后。那个像“按摩师”一样的客厅,北欧风格的沙发这双温柔的大手它可以推开你的疲惫。男主人不喜欢繁杂,那个条框简洁的电视柜与原木色的小茶几就这样出现在这所小房子里。分割客厅与玄关的是一盆讨人喜的绿植。

中海和平之门-82平-北欧现代风格--餐厅4.jpg 中海康城-82平-北欧现代风格--餐厅1.jpg 中海康城-82平-北欧现代风格--餐厅2.jpg 中海康城-82平-北欧现代风格--餐厅3.jpg 中海康城-82平-北欧现代风格--主卧1.jpg 中海康城-82平-北欧现代风格--主卧室2.jpg 中海康城-82平-北欧现代风格--卫生间1.jpg 中海康城-82平-北欧现代风格--卫生间2.jpg 中海和平之门-82平-北欧现代风格--厨房.jpg

厨房的设计,小两口与设计师的构思完全吻合,中西厨的布局可以填满夫妻俩闲暇的烹饪时光。 门厅玄关就像拉丁神灯里的巨人完成任务“啪”的一声可以瞬间消失。

中海康城-82平-北欧现代风格-平面图.jpg

案例设计师

林凤设计师

设计师:林凤设计师

从业时间:9年

设计理念:艺术里的炊烟 专业、走心、做生活化有品位设计 私人定制您的家居空间,用设计引导和改变生活态度

预约设计师

算算你家装修多少钱

报名即享丰厚赠品,品质装修

免费报价
咨询热线:400-656-9909
20190221103704574636.jpg

精品设计案例

20180612134930523248.jpg 服务号二维码.jpg