立即预约 立即预约
免费定制整装家居

免费定制整装家居

一站置家 全程无忧 一省到底
hide.png

当前位置: 首页 > 装修案例效果图 > 格林玫瑰湾

格林玫瑰湾 130平 现代简约风格效果图

收藏
案例风格 现代简约 案例户型 三居 案例面积 130平米
楼盘名称 格林玫瑰湾 设计师 李雪 案例类型 改善性住宅

设计理念:设计理念:本案是以现代风格为主的设计,现代风格它是特别流行的风格,追求时尚与潮流,非常重视空间的布局与使用功能的完美结合,它非常讲究自身的材质和色彩的搭配。
业主家庭情况及要求:业主是一对年轻的情侣,喜欢现代舒适的生活环境,不太喜欢艳丽的色彩,喜欢温馨大气的感觉,所以家庭上的装修风格设定为现代风格。

客厅
第1张
第2张
第3张
餐厅
第1张
卧室
第1张
第2张
第3张
第4张
卫生间
第1张
第2张
厨房
第1张
门厅
第1张
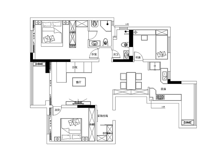
户型图
第1张
格林玫瑰湾-130平-现代风格-客厅02.jpg 格林玫瑰湾-130平-现代风格-客厅01.jpg 格林玫瑰湾-130平-现代风格-客卫.jpg

现代风格的设计比较温馨大气,追求舒适感所以本案的客厅采用L型沙发,电视背景墙运用大量的原木色柜子在功能上大大的提高了储物空间,视觉上又给人一种错落的感觉,在本案客厅的设计中我选用了米白色的沙发和棕色的抱枕,整体奢华又不花哨。

格林玫瑰湾-130平-现代风格-餐厅01.jpg

本案餐厅采用白色方桌,餐桌上黑色的吊灯和餐桌桌面材质相辅相成,餐椅的颜色和客厅沙发的颜色采用同一种色调,有一种和谐美,白颜色更加能体现现代的感觉。

格林玫瑰湾-130平-现代风格-次卧室.jpg 格林玫瑰湾-130平-现代风格-榻榻米.jpg 格林玫瑰湾-130平-现代风格-主卫.jpg 格林玫瑰湾-130平-现代风格-主卧室.jpg

客卧室空间尺寸小点,我们将客卧室改造成榻榻米房间,客户满足居住,学习与亲属到访时的居住要求。

格林玫瑰湾-130平-现代风格-主卫-(2).jpg 格林玫瑰湾-130平-现代风格-主卫.jpg

卫生间内部结构比较合理,我们利用仿古系列瓷砖来装饰卫生间空间大气又上档次 运用黄色的灯光显得更加大气。

格林玫瑰湾-130平-现代风格-厨房01.jpg

厨房的面积也不是很大,因此厨房的设计除了效果以外就是储物空间了,但凡有能做柜子的地方,在不影响效果的前提下,设计师都为房主做上了储物柜,遇到窗口不能放吊柜的地方,就利用隔板代替。

格林玫瑰湾-130平-现代风格-门厅.jpg

门厅位置有独立玄关鞋柜,玄关鞋柜我们选择了一种及通透又有使用价值的隔断,既能储物而且还能坐着换鞋,实用方便。

格林玫瑰湾-130平-现代风格-平面图.jpg

案例设计师

李雪

设计师:李雪

从业时间:6年

设计理念:设计源于生活,而又升华于生活。

预约设计师

算算你家装修多少钱

报名即享丰厚赠品,享半价装修

免费报价
咨询热线:400-656-9909
20190221103704574636.jpg

精品设计案例

20180612134930523248.jpg 服务号二维码.jpg