立即预约 立即预约
免费定制整装家居

免费定制整装家居

一站置家 全程无忧 一省到底
hide.png

当前位置: 首页 > 装修案例效果图 > 月星中央公园

月星中央公园 103平 现代简约风格效果图

收藏
案例风格 现代简约 案例户型 三居 案例面积 103平米
楼盘名称 月星中央公园 设计师 林凤设计师 案例类型 旧房改造

设计理念:设计说明:设计源于生活,生活因设计而改变,用有限的空间。做无限的设计,成就梦想之家。
设计师整体设计理念:本案采用的风格为现代轻奢风格,整体以简洁为主,采用小资浪漫的色彩,形成对比。

客厅
第1张
第2张
第3张
第4张
餐厅
第1张
卧室
第1张
第2张
书房
第1张
衣帽间
第1张
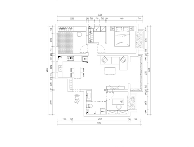
户型图
第1张
月星中央公园-103平-现代风格-电视背景墙.jpg 月星中央公园-103平-现代风格-沙发背景墙.jpg 月星中央公园-103平-现代风格-沙发背景墙1.jpg 月星中央公园-103平-现代风格-首图.jpg

客厅整体三种颜色,蓝+灰+粉,业主比较年轻,喜欢现行网络上比较火的脏粉色,同时用淡蓝色做对比,灰色,黑色,白色作为辅助色去点缀,整体体现了现代轻奢风格的时尚与低调。

月星中央公园-103平-现代风格-餐厅.jpg 月星中央公园-103平-现代风格-次卧.jpg 月星中央公园-103平-现代风格-主卧.jpg

主卧室床整体以蓝色为主,背景墙暖灰色营造暖色的卧室氛围,其余配饰以白色和金色为辅助点缀。次卧为儿童房的概念,整体以白色吸塑门板为主,在色彩搭配上,设计了暖白与蓝色相对应的颜色,凸显整个空间色彩的对比。

月星中央公园-103平-现代风格-书房.jpg

书房的衣柜也同样采用明度较低的蓝色,加上白色与金色钢条的书桌,简单随意,有内涵。

月星中央公园-103平-现代风格-衣帽间.jpg 月星中央公园-103平-现代风格-平面图.jpg

案例设计师

林凤设计师

设计师:林凤设计师

从业时间:5年

设计理念:设计源于生活,生活因设计而改变,用有限的空间。做无限的设计,成就梦想之家。

预约设计师

算算你家装修多少钱

报名即享丰厚赠品,享半价装修

免费报价
咨询热线:400-656-9909
20190221103704574636.jpg

精品设计案例

20180612134930523248.jpg 服务号二维码.jpg