立即预约
免费定制整装家居
一站置家 全程无忧 一省到底
设计理念:设计师整体设计理念: 设计源于生活,用心改变设计
业主家庭情况及要求: 客户是年轻夫妻,有一个非常活泼可爱的小男孩,客户想让房子有一个温馨的气氛,同时也比较注重整体效果以及细节,所以推荐客户做暖色系现代风格。
案例详情
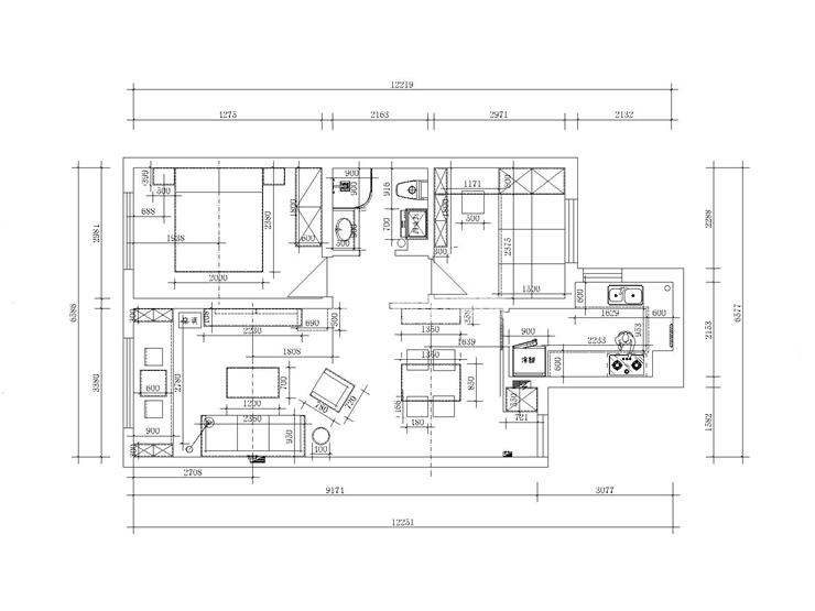
客厅空间原本比较规整,期间稍做改动,将原来的飘窗拆除,改做地台,不仅增加了储物空间,也提升了美观度以及舒适性。墙面贴浅蓝色壁纸,棚面做直线边棚,镶嵌筒灯,灯光为空间增添了温馨的气温,人字拼地板为整个空间增添了些许个性。家具的样式、颜色以及电视墙的设计,都是经过精心挑选设计的,塑造了客厅空间的整体性以及温馨且舒适的感觉。
餐厅位置与客厅整体贯通,所以要注意整体协调性,为此,选用同款餐桌餐椅以及餐边柜,将整体空间串联,厨房谷仓门也为餐厅空间增添了设计元素,墙面配饰以及金属质感餐吊灯,都为餐厅增添了温馨气氛。
卧室部分结合客户需求,也没有做较大改动,拆除原本的飘窗,将之前的卧室空间扩大,选用浅色布艺现代双人床,浅蓝色床品以及黄色靠包与窗帘相呼应,浅木色大衣柜有足够的储物空间。带有黄色元素以及浅蓝色的地毯,将整个空间串联起来,提升整体性。
卫生间墙砖地砖结合整体风格整体选用灰色大理石纹瓷砖,洗手盆选用黑色木纹浴室柜,浴室柜门板为浅色岩板,通过尺寸排布,整体空间规整统一。
厨房做U型橱柜,原本厨房有一个飘窗,但是由于厨房空间并不大,所以选择将飘窗拆除,做U型橱柜,并且设计原木色与浅灰色A、B板,让厨房空间不再单调。
玄关处空间并不大,所以做通顶玄关柜,充分利用空间增加储物,柜体板选用与客厅空间相似的深色木纹与白色烤漆门板,将空间相结合,提升整体性。
精品设计案例
设计说明:
三室两厅一厨两卫,高层整体采用美式风格,色调以深色为主,体现美式的居家感和温馨感。
设计说明:
本案业主为年轻时尚小两口,所以我们考虑到未来想要给未来宝宝一个温馨舒适的一个房间,所以本案整体采用现代风格的手法,运用颜色,来打造整体空间的设计感及时尚感
设计说明:
本案以北欧风格为主题的设计,北欧风格能以现代、简洁、自然的特点俘获人心,所营造出来的生活氛围会让人倍感舒适与自在。
设计说明:
客户是一名成功人士,对于家的执念就是简单干净,客户衣服比较多,所以把每个空间都做了大衣柜,并且融入到设计里