立即预约 立即预约
免费定制整装家居

免费定制整装家居

一站置家 全程无忧 一省到底
hide.png

当前位置: 首页 > 装修案例效果图 > 华润·翡翠城

华润·翡翠城 132平 美式风格效果图

收藏
案例风格 美式 案例户型 四居 案例面积 132平米
楼盘名称 华润·翡翠城 设计师 林凤装饰全案设计师 案例类型 婚房

设计理念:设计师整体设计理念:用整装理念以及色彩搭配缔造舒适生活空间
业主家庭情况及要求:本案是父母给孩子装的婚房,喜欢简美风格,要求全部为实木家具,并且希望装完能展现出一个时尚大气的效果

  • 案例详情

华润·翡翠城-132平-简美风格- 客厅2.jpg 华润·翡翠城-132平-简美风格- 客厅1.jpg 华润·翡翠城-132平-简美风格- 客厅3.jpg 华润·翡翠城-132平-简美风格- 首图.jpg

本案简美风格,大厅以简洁的设计手法,并无采用繁复的吊顶造型,简单大气的简美家具,以及并不复杂却凸显大气的背景墙都为客厅空间增添高端的感觉以及整洁和视觉上的美感。

华润·翡翠城-132平-简美风格- 餐厅2.jpg 华润·翡翠城-132平-简美风格- 餐厅3.jpg 华润·翡翠城-132平-简美风格- 餐厅1.jpg

餐厅空间与客厅空间产生了联动,所以结合客厅整体感觉,餐厅也以简约形式进行设计,其中餐厅与卫生间之间以酒柜的形式取代隔断,不仅增加了美观度,更提升了功能性。

华润·翡翠城-132平-简美风格- 主卧室2.jpg 华润·翡翠城-132平-简美风格- 主卧室1.jpg

卧室是我们工作之余在家休息使用时间最多的,所以卧室空间一定是最舒适的,拼花地板为卧室空间增加个性及美观度,墙面以及天花舍弃复杂的造型,以简约大气的形式让卧室不再杂乱,提升舒适性。

华润·翡翠城-132平-简美风格- 卫生间2.jpg 华润·翡翠城-132平-简美风格- 卫生间1.jpg

本案卫生间采用干湿分离形式进行设计,定制大面积洗手台更大程度的提升舒适性,大面积浴屛将所有不同功能区域进行分割,使卫生间区域干净整洁。

华润·翡翠城-132平-简美风格- 厨房2.jpg 华润·翡翠城-132平-简美风格- 厨房1.jpg

本案采用开放式厨房,整体感觉结合客餐厅做与其贯通的方式进行设计,冰箱内嵌,做U型橱柜,使厨房空间干净整洁的同时,凸显大气,厨房还做了吧台,使开放式厨房与餐厅空间有所互动,整体感更佳。

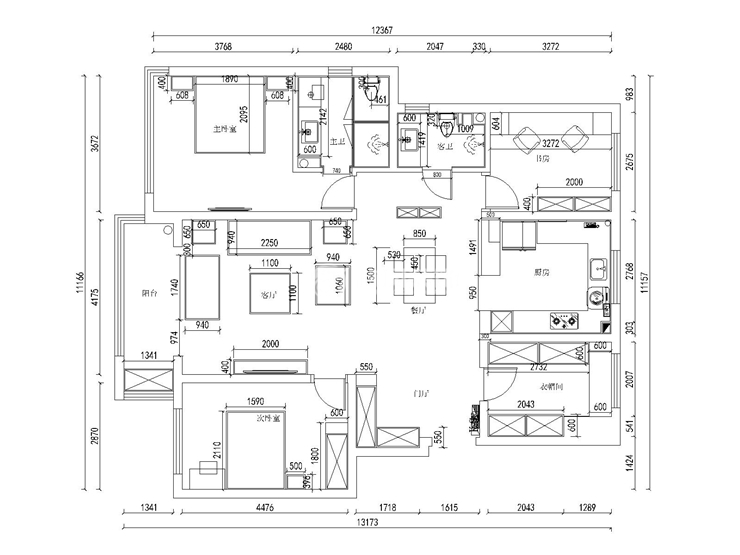
华润·翡翠城-132平-简美风格- 平面图.jpg

案例设计师

林凤装饰全案设计师

设计师:林凤装饰全案设计师

从业时间:12年

设计理念:应时而变,为未来生活而设计

预约设计师

算算你家装修多少钱

报名即享丰厚赠品,享半价装修

免费报价
咨询热线:400-656-9909
20190221103704574636.jpg

精品设计案例

20180612134930523248.jpg 服务号二维码.jpg