立即预约 立即预约
免费定制整装家居

免费定制整装家居

一站置家 全程无忧 一省到底
hide.png

当前位置: 首页 > 装修案例效果图 > 华发岭南荟

华发岭南荟 233平 美式风格效果图

收藏
案例风格 美式 案例户型 四居 案例面积 233平米
楼盘名称 华发岭南荟 设计师 林凤装饰设计师 案例类型 改善性住宅

设计理念:本案以后欧式与美式田园为主的设计,中性时尚,温馨,家是一家人的家,不要太女性化,不要太另类,不要太过复杂,这种搭配令空间充满恒久的亲和力!让人比较容易接受的风格,是最值得选择。

客厅
第1张
第2张
第3张
第4张
餐厅
第1张
第2张
卧室
第1张
第2张
厨房
第1张
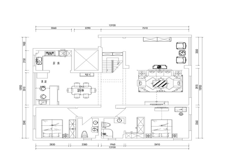
户型图
第1张
  • 案例详情

华发岭南荟-233-美式风格-客厅2.jpg 华发岭南荟-233-美式风格-会客厅.jpg 华发岭南荟-233-美式风格-客厅.jpg 华发岭南荟-233-美式风格-客厅1.jpg

客厅天花板采用嵌入式石膏吊顶,搭配精致的水晶吊顶,营造出一种怀旧、浪漫的感觉。以大理石作为地面装饰材料,光泽感极佳,在沙发区铺上大幅花纹地毯,使空间区域划分更加清晰。复古造型的组合沙发,以及茶几都具有上乘的质感,让美式古典风格得以进一步的彰显。

华发岭南荟-233-美式风格-餐厅1.jpg 华发岭南荟-233-美式风格-餐厅.jpg

带有矩形图案的地砖,强调出餐厅空间的所属范围。粗犷、大气的美式餐桌椅,搭配复古造型的角几,让人迷失在时光隧道中。窗帘采用双层设计,一层为奢华的提花布,另一层则为轻薄的纱帘,兼顾了保护隐私与透光性。

华发岭南荟-233-美式风格-卧室.jpg 华发岭南荟-233-美式风格-卧室1.jpg

设计师利用飘窗台面改造,拓展出更多的活动空间。卧室空间的地面装饰材料选用脚感更舒适的木地板,墙面则采用驼色乳胶漆粉刷,表现出美式风格追求简单、实用的特点。

华发岭南荟-233-美式风格-厨房.jpg

厨房主要以仿古墙砖在搭配实木门板,深浅搭配颜色的运用,让女主人在烹饪过程中会放松身心。

华发岭南荟-233-美式风格-户型图.jpg

案例设计师

林凤装饰设计师

设计师:林凤装饰设计师

从业时间:10年

设计理念:合理划分空间,让设计融入生活,营造自然、品味、格调。

预约设计师

算算你家装修多少钱

报名即享丰厚赠品,品质装修

免费报价
咨询热线:400-656-9909
20190221103704574636.jpg

精品设计案例

20180612134930523248.jpg 服务号二维码.jpg