立即预约 立即预约
免费定制整装家居

免费定制整装家居

一站置家 全程无忧 一省到底
hide.png

当前位置: 首页 > 装修案例效果图 > 龙之梦畅园

龙之梦畅园 185平 现代简约风格效果图

收藏
案例风格 现代简约 案例户型 三居 案例面积 185平米
楼盘名称 龙之梦畅园 设计师 林凤装饰设计师 案例类型 改善性住宅

设计理念:设计师整体设计理念:此案设计中金属色和灰色的而完美结合,在整体空间上的颜色看起来还比较低调,沉稳。造型上面线条比较简单,又不失奢华。设计效果让业主感觉 有高的品质,又满足现代年轻家庭的轻奢需求。
业主家庭情况及要求: 本案例业主是一对30岁左右的夫妻,家里有一个2岁的宝宝,两个人在银行工作,当时买这个房子是改善房,由于两个人平时工作的性质关系,在选定风格和颜色上面都比较谨慎,而且也烦与每天的紧张的工作,所以设计师结合两个人的喜好设计了现代轻奢的风格。

客厅
第1张
第2张
第3张
餐厅
第1张
卧室
第1张
第2张
卫生间
第1张
厨房
第1张
第2张
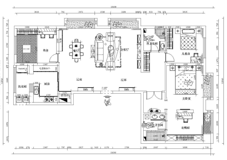
户型图
第1张
龙之梦畅园-185㎡-现代轻奢风格-客厅.jpg 龙之梦畅园-185㎡-现代轻奢风格-客厅2.jpg 龙之梦畅园-185㎡-现代轻奢风格-首图.jpg

木做背景墙中间设计的是雅士白纹理的大理石,吊棚上金色的钨钢条和地面的穿边形成上下呼应,金色边得的吊灯和金边的茶几形成呼应,整理流畅的线条感突出了低调奢华的感觉。

龙之梦畅园-185㎡-现代轻奢风格-餐厅.jpg

餐厅的格局和客厅是在一个空间,在餐厅就餐的同时也可以观看客厅的电视 ,在女主人干活的同时也可以和坐在客厅的家人们形成互动。让繁忙的一天工作的两个人增加不少趣味。

龙之梦畅园-185㎡-现代轻奢风格-卧室.jpg 龙之梦畅园-185㎡-现代轻奢风格-卧室1.jpg

主卧室的独立衣帽间是设计的 一个亮点,开放式的衣帽间和书房结合,这样既能储物又能方便业主在深夜的时候独立办公。柜体的颜色也呼应了我们的整体现代轻奢的风格特点。

龙之梦畅园-185㎡-现代轻奢风格-卫生间.jpg

卫生间浴屏的设计,让忙碌的两个减少家务的压力。智能马桶的设计同时也增加了不少方便之处。深色的瓷砖在搭配金色的浴室柜 更加的能突显出奢华的感觉。

龙之梦畅园-185㎡-现代轻奢风格-厨房.jpg 龙之梦畅园-185㎡-现代轻奢风格-厨房2.jpg

厨房中 洗碗机,蒸箱,烤箱,洗手盆,烟机灶台的合理规划,让整体使用上面更加方便,让储物空间也增加不少,颜色上面 也更加深沉,稳重。

龙之梦畅园-185㎡-现代轻奢风格-平面图.jpg

案例设计师

林凤装饰设计师

设计师:林凤装饰设计师

从业时间:6年

设计理念:源于生活,生活因设计而改变!

预约设计师

算算你家装修多少钱

报名即享丰厚赠品,品质装修

免费报价
咨询热线:400-656-9909
20190221103704574636.jpg

精品设计案例

20180612134930523248.jpg 服务号二维码.jpg