立即预约 立即预约
免费定制整装家居

免费定制整装家居

一站置家 全程无忧 一省到底
hide.png

当前位置: 首页 > 装修案例效果图 > 金地长青湾

金地长青湾 90平 欧式风格效果图

收藏
案例风格 欧式 案例户型 二居 案例面积 90平米
楼盘名称 金地长青湾 设计师 林凤设计师 案例类型 改善性住宅

设计理念:设计说明:生活原本有形有色,何必枯燥无味。用正确的方式来生活,活在当下。
设计师整体设计理念:本案运用简欧的设计元素,表现了情怀和对生活的一种状态,一种认知。

客厅
第1张
第2张
第3张
餐厅
第1张
第2张
卧室
第1张
卫生间
第1张
厨房
第1张
过廊
第1张
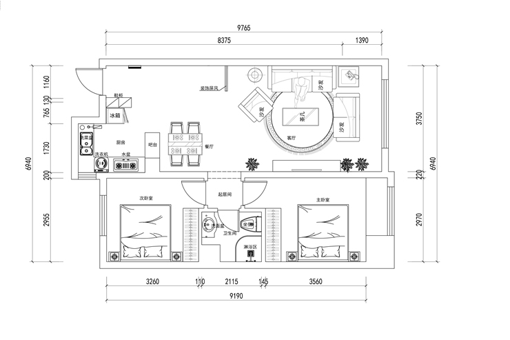
户型图
第1张
  • 案例详情

金地长青湾-90平-简欧风格-首图.jpg 金地长青湾-90平-简欧风格-客厅3.jpg 金地长青湾-90平-简欧风格-客厅2.jpg

客厅说明:客厅墙面大面积运用墙纸,地面运用大理石,电视墙用白色木线勾勒出符合风格的造型,使简欧的风格体现的很别致,但是并不复杂水晶灯的搭配起到了画龙点睛的作用,使整体的空间感更强!

金地长青湾-90平-简欧风格-餐厅.jpg 金地长青湾-90平-简欧风格-餐厅1.jpg

餐厅说明:餐厅为敞开式,和厨房连贯在一起,在做饭的时候也可以和家人多一些互动,既增加了生活乐趣,又增进了亲人朋友的感情,整体的操作流程更有情趣!

金地长青湾-90平-简欧风格-卧室1.jpg

主卧室说明:运用石膏线和墙纸的结合,增加卧室的温馨感,窗帘的颜色与整个卧室也是很协调的,不是那么突兀,墙面照片墙和灯具的搭配使整个空间的效果更加明显!

金地长青湾-90平-简欧风格-卫生间.jpg

卫生间说明:卫生间与外界的感觉有些改变,运用了简单的处理方式,这样不会让卫生间显得小,颜色的搭配使整体空间明度更高!

金地长青湾-90平-简欧风格-厨房.jpg

厨房说明:厨房为敞开式,和餐厅的贯通,空间上看着格外宽敞舒服,开放是厨房的特点就是宽敞明亮互动性强!

金地长青湾-90平-简欧风格-门厅.jpg 金地长青湾-90平-简欧风格-平面图.jpg

案例设计师

林凤设计师

设计师:林凤设计师

从业时间:10年

设计理念:一个愉悦的空间、一种尊贵的生活、一方独享的天地,都在这里寻求最合适的表达。

预约设计师

算算你家装修多少钱

报名即享丰厚赠品,品质装修

免费报价
咨询热线:400-656-9909
20190221103704574636.jpg

精品设计案例

20180612134930523248.jpg 服务号二维码.jpg