立即预约 立即预约
免费定制整装家居

免费定制整装家居

一站置家 全程无忧 一省到底
hide.png

当前位置: 首页 > 装修案例效果图 > 华润奉天九里

华润奉天九里 97平 美式风格效果图

收藏
案例风格 美式 案例户型 二居 案例面积 97平米
楼盘名称 华润奉天九里 设计师 林凤装饰设计师 案例类型 婚房

设计理念:本设计定位简约美式风格,整个设计以突出美式家的舒适及休闲的感觉,搭配美式风格的家具及硅藻泥等材料,主要合理规划了整个房间的空间分割,合理规划对每个空间的利用,突出了设计师的想法

客厅
第1张
第2张
第3张
第4张
餐厅
第1张
卧室
第1张
卫生间
第1张
厨房
第1张
门厅
第1张
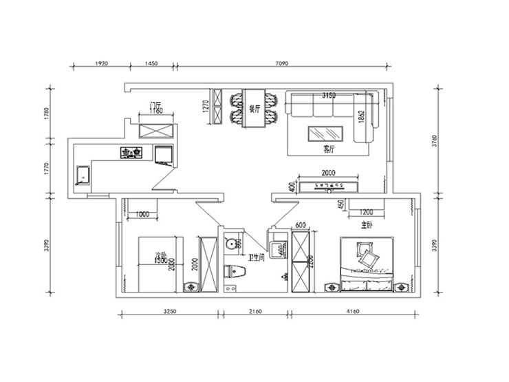
户型图
第1张
  • 案例详情

李国良-奉天九里97平美式简约-客厅1.jpg 李国良-奉天九里97平美式简约-客厅.jpg 李国良-奉天九里97平美式简约-客厅3.jpg 李国良-奉天九里97平美式简约-客厅2.jpg

客厅整体采用深色木质地板,突出美式简约风格的贵气感、自在感与情调感。造型设计上简单大气,淡蓝色硅藻泥设计的墙面即达到了环保的标准又赋予空间一定的美感,搭配木作与白色相间的家具,铁艺风格的设计吊灯,让每个空间相互平衡,更有家的味道。

李国良-奉天九里97平美式简约-餐厅.jpg

餐厅区域与客厅相连,餐厅处墙面巧妙的运用装饰隔板与沙发背景的画品分割开,使得每个空间划分更加明显,餐厅上方以铁艺的风扇灯与餐厅木色与白色相间的餐桌相搭配,与整体的装饰风格相吻合。

李国良-奉天九里97平美式简约-卧室.jpg

卧室采用了实木地板。床头背景竖装线条壁纸,整个棚面双层造型顶角线,卧室灯罩颜色与窗帘的颜色的呼应关系,搭配白色的床及床头柜,使得卧室看起来更加温馨浪漫。

李国良-奉天九里97平美式简约-卫生间.jpg

卫生间采用暖色欧式造型瓷砖,搭配白色卫浴,以及紫色柜门与白色相间浴室柜,使得整体空间更有韵味,看起来更加大气

李国良-奉天九里97平美式简约-厨房.jpg

厨房采用欧式哑光瓷砖,整体空间以AB款的瓷砖分隔开,搭配白色实木欧式造型橱柜,整体空间比较宽敞,空间搭配适当合理。

李国良-奉天九里97平美式简约-玄关.jpg 华润奉天九里-美式风格-97平-户型图.jpg

案例设计师

林凤装饰设计师

设计师:林凤装饰设计师

从业时间:10年

设计理念:合理划分空间,让设计融入生活,营造自然、品味、格调。

预约设计师

算算你家装修多少钱

报名即享丰厚赠品,品质装修

免费报价
咨询热线:400-656-9909
20190221103704574636.jpg

精品设计案例

20180612134930523248.jpg 服务号二维码.jpg