立即预约 立即预约
免费定制整装家居

免费定制整装家居

一站置家 全程无忧 一省到底
hide.png

当前位置: 首页 > 装修案例效果图 > 金辉优步湖畔

金辉优步湖畔 100平 新中式风格效果图

收藏
案例风格 新中式 案例户型 三居 案例面积 100平米
楼盘名称 金辉优步湖畔 设计师 林凤装饰设计师 案例类型 改善性住宅

设计理念:本案是新中式风格,以干净简洁的白色与原木色为主色调,以简洁的质感和大面积彩色做互补,提高了空间感。
户型优缺点分析:
优点:南北通透,采光通风好,
缺点:背景墙太短,厨房门位置不好,卫生间门对床

客厅
第1张
第2张
餐厅
第1张
第2张
卧室
第1张
第2张
卫生间
第1张
厨房
第1张
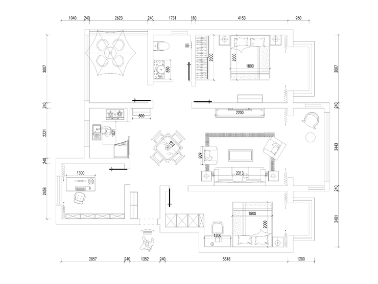
户型图
第1张
  • 案例详情

金辉优步湖畔-100平-新中式风格-客厅1.jpg 金辉优步湖畔-100平-新中式风格-客厅2.jpg

客厅的电视背景墙采用了石材上墙的效果,山水画的石材文理突出了新中式的主题,灰色的石材纹理与同一平面上的白色石材基底产生明暗对比。使得同一平面在色彩与空间上产生差异,拉伸整个背景墙的视觉效果。

金辉优步湖畔-100平-新中式风格-餐厅1.jpg 金辉优步湖畔-100平-新中式风格-餐厅2.jpg

餐桌采用了胡桃木质感的方形四人餐桌,灰色与藏蓝色的木质餐椅 给人质朴纯洁的感觉。

金辉优步湖畔-100平-新中式风格-次卧室.jpg 金辉优步湖畔-100平-新中式风格-主卧室.jpg

整体墙面米色壁纸,棚顶石膏板平棚与四周宽石膏板造型抬高整个空间的视觉效果,深胡桃色家具搭配白色皮质床头与白色加藏蓝色床品布艺,提高了整个卧室的质感,卧室墙面选用了白色乳胶漆与深色床头达成色彩上的统一和谐,棚顶黑漆抽缝增加了视觉的冲击力。

金辉优步湖畔-100平-新中式风格-卫生间.jpg

整体采用了白色瓷砖,搭配白色洁具与深色浴室柜,坐便背景做了黑色铁艺置物架,满足了卫生间的储物功能。

金辉优步湖畔-100平-新中式风格-厨房.jpg

整体瓷砖选用了白色理石纹理横向铺贴的方式,橱柜选用了白色亮光材质,与纯白色台面效果统一,整个空间给人一种干净清爽的感觉。

金辉优步湖畔-100平-新中式风格-户型图.jpg

案例设计师

林凤装饰设计师

设计师:林凤装饰设计师

从业时间:8年

设计理念:在确保满足使用功能的前提下,达到审美效果的最大化。

预约设计师

算算你家装修多少钱

报名即享丰厚赠品,享半价装修

免费报价
咨询热线:400-656-9909
20190221103704574636.jpg

精品设计案例

20180612134930523248.jpg 服务号二维码.jpg