立即预约 立即预约
免费定制整装家居

免费定制整装家居

一站置家 全程无忧 一省到底
hide.png

当前位置: 首页 > 装修案例效果图 > 远洋大河宸章

远洋大河宸章 168平 现代简约风格效果图

收藏
案例风格 现代简约 案例户型 四居 案例面积 168平米
楼盘名称 远洋大河宸章 设计师 林凤装饰设计师 案例类型 改善性住宅

设计理念:本案设计港式现代时尚,以大面积平棚造型点缀艺术排列的筒灯效果,灰色地砖衬托空间稳重大气,轻奢豪华,清新时尚的港式为主无主灯设计理念,白色和胡桃色背景相呼应,更美观时尚。

客厅
第1张
餐厅
第1张
卧室
第1张
第2张
第3张
卫生间
第1张
第2张
厨房
第1张
书房
第1张
儿童房
第1张
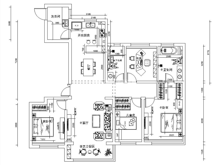
户型图
第1张
  • 案例详情

远洋大河宸章-168平-现代风格-客厅2.jpg

客厅和餐厅超时尚设计,浅色理石结合深色木纹装饰,整体无主灯设计,一黑色筒灯艺术排列做装点,满是现代时尚气息。把现代的时尚感觉体现的淋淋尽致。

远洋大河宸章-168平-现代风格-餐厅.jpg 远洋大河宸章-168平-现代风格-次卧室.jpg 远洋大河宸章-168平-现代风格-主卧室1.jpg 远洋大河宸章-168平-现代风格-主卧室2.jpg 远洋大河宸章-168平-现代风格-次卫生间.jpg 远洋大河宸章-168平-现代风格-主卫生间.jpg

本案卫生间采用深灰色的瓷砖,加上洁具的玩么造型做装饰。强烈对比的颜色,让卫生间格外有个性。

远洋大河宸章-168平-现代风格-厨房.jpg

厨房改成开放式,把厨房外面的空间和厨房结合在一体,以白色烤漆亮面柜子问主体,结合中灰色的理石倒台和酒柜,让整个厨房空间反差颜色感觉格外大气现代

远洋大河宸章-168平-现代风格-书房.jpg 远洋大河宸章-168平-现代风格-儿童房.jpg 远洋大河宸章-168平-现代风格-平面布局.jpg

案例设计师

林凤装饰设计师

设计师:林凤装饰设计师

从业时间:12年

设计理念:设计源于生活,细节成就品质

预约设计师

算算你家装修多少钱

报名即享丰厚赠品,享半价装修

免费报价
咨询热线:400-656-9909
20190221103704574636.jpg

精品设计案例

20180612134930523248.jpg 服务号二维码.jpg