立即预约 立即预约
免费定制整装家居

免费定制整装家居

一站置家 全程无忧 一省到底
hide.png

当前位置: 首页 > 装修案例效果图 > 碧桂园繁华里

碧桂园繁华里 120平 现代简约风格效果图

收藏
案例风格 现代简约 案例户型 三居 案例面积 120平米
楼盘名称 碧桂园繁华里 设计师 林凤设计师 案例类型 婚房

设计理念:本案以现代风格设计为主,主要特点为简洁大方,达到有效利用空间目的。

客厅
第1张
第2张
餐厅
第1张
卧室
第1张
卫生间
第1张
厨房
第1张
门厅
第1张
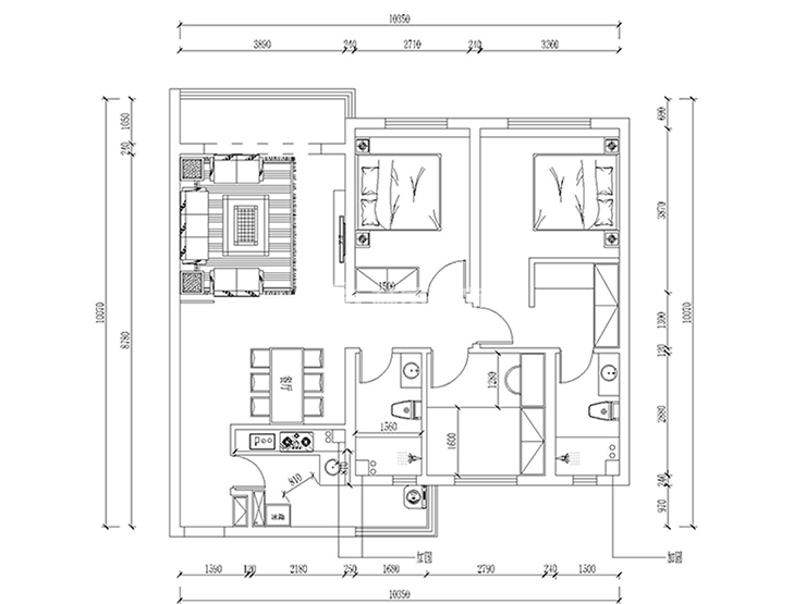
户型图
第1张
  • 案例详情

碧桂园繁华里-120平-现代风格-客厅01.jpg 碧桂园繁华里-120平-现代风格-客厅02.jpg

客厅地面使用灰色地砖,搭配灰色布艺沙发。客厅背景墙是淡蓝色乳胶漆,搭配原木色电视柜。配以与之空间颜色相呼应的吊灯使空间整体感觉简单整洁。

碧桂园繁华里-120平-现代风格-餐厅.jpg

与客厅主灯相搭配的餐厅灯,配以深木色的餐桌,白色的餐椅,使整个就餐区域给人的感觉干净,简简单单的餐厅背景墙,既有格调又不失情调。

碧桂园繁华里-120平-现代风格-卧室.jpg

北卧室面积很小,为了达到有效利用率,采用榻榻米,满足空间功能性,将来作为儿童房游刃有余,色彩方面,白色又使得空间整洁又没有时代感。

碧桂园繁华里-120平-现代风格-卫生间.jpg

卫生间墙面以灰色调为主,淋浴区单独的爵士白,搭配深木色浴室柜。整个棚面采用防潮石膏板加防水乳胶漆,使整个空间看起来非常的奢华,有质感。

碧桂园繁华里-120平-现代风格-厨房.jpg

厨房以木色橱柜与白色墙砖相搭配,使整个空间看起来非常干净整洁,可以使在厨房备餐的人心情愉悦,用美好的心情做出美好的美味。

碧桂园繁华里-120平-现代风格-玄关.jpg 碧桂园繁华里-120平-现代风格-平面图.jpg

案例设计师

林凤设计师

设计师:林凤设计师

从业时间:6年

设计理念:化繁为简,以简驭繁。

预约设计师

算算你家装修多少钱

报名即享丰厚赠品,享半价装修

免费报价
咨询热线:400-656-9909
20190221103704574636.jpg

精品设计案例

20180612134930523248.jpg 服务号二维码.jpg