立即预约 立即预约
免费定制整装家居

免费定制整装家居

一站置家 全程无忧 一省到底
hide.png

当前位置: 首页 > 装修案例效果图 > 月星中央公园

月星中央公园 106平 现代简约风格效果图

收藏
案例风格 现代简约 案例户型 三居 案例面积 106平米
楼盘名称 月星中央公园 设计师 林凤装饰设计师 案例类型 改善性住宅

设计理念:本案以现代简约为主风格,以空间的实用性与艺术性的高度统一,整个色调温馨柔和,主体背景色调为暖白色,以原木色为主体色,点缀黄色装饰品。使空间生动温馨。是自然与现代的高度统一与融合。

客厅
第1张
餐厅
第1张
卧室
第1张
第2张
第3张
第4张
卫生间
第1张
厨房
第1张
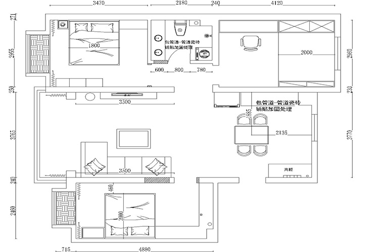
户型图
第1张
  • 案例详情

月星中央公园-106平-现代简约风格-客厅.jpg

客厅空间所有色调搭配的轻松自然,结束一天忙碌的工作,走进这样的客厅,窝在沙发里可以缓解一天的疲惫。

月星中央公园-106平-现代简约风格-餐厅.jpg

实木餐桌,简约大方,在餐桌上随手就能泡上一杯咖啡,转身坐下就可以吃到亲手做的蛋糕。

月星中央公园-106平-现代简约风格-榻榻米.jpg 月星中央公园-106平-现代简约风格-儿童房2.jpg 月星中央公园-106平-现代简约风格-儿童房.jpg 月星中央公园-106平-现代简约风格-主卧.jpg

一个是优雅的绅士,一个是俏丽的淑女,他们不需要太繁琐的装饰,特地选用原木材质的床头柜,让空间选的更加灵动自然。由于空间较小,采用简约实用的榻榻米设计,有效的利用每一寸角落,这是平时Z小姐的休闲空间,换上新床品就是父母长辈们的独立空间。

月星中央公园-106平-现代简约风格-卫生间.jpg

灰色的大理石铺显得简洁大气,白烤漆的梳妆台柜结合狭长的镜面将现代风格的轻奢气质延续于此 。

月星中央公园-106平-现代简约风格-厨房.jpg

开放式厨房,有效的的扩大了整个厨房空间。使客厅更加宽敞明亮。是厨房动线更加流畅。给女主人提供一个快乐的烹饪环境。

月星中央公园-106平-现代简约风格-平面图.jpg

案例设计师

林凤装饰设计师

设计师:林凤装饰设计师

从业时间:8年

设计理念:好的设计是实用性,经济性,和艺术性的高度统一。

预约设计师

算算你家装修多少钱

报名即享丰厚赠品,品质装修

免费报价
咨询热线:400-656-9909
20190221103704574636.jpg

精品设计案例

20180612134930523248.jpg 服务号二维码.jpg