立即预约 立即预约
免费定制整装家居

免费定制整装家居

一站置家 全程无忧 一省到底
hide.png

当前位置: 首页 > 装修案例效果图 > 金地名悦

金地名悦 89平 现代简约风格效果图

收藏
案例风格 现代简约 案例户型 二居 案例面积 89平米
楼盘名称 金地名悦 设计师 林凤装饰设计师 案例类型 婚房

设计理念:本案是以现代简约风格为主的设计,现代简约风格的特色是将设计的元素、色彩、简化到最少的程度,对材料色彩要求很高。所以简约的空间设计非常含蓄。

客厅
第1张
第2张
餐厅
第1张
第2张
卧室
第1张
第2张
卫生间
第1张
厨房
第1张
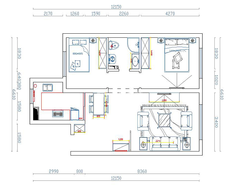
户型图
第1张
  • 案例详情

金地名悦-89平-现代简约风格-客厅1.jpg 金地名悦-89平-现代简约风格-客厅2.jpg

在客厅色彩方面的选择,其选择给人干净简洁的白色为色彩基调。除了白色之外,又搭配黄色的单人沙发以及黄色的抱枕作为点缀。凸显客厅空间不那么死板。

金地名悦-89平-现代简约风格-客餐厅.jpg 金地名悦-89平-现代简约风格-餐厅.jpg

餐厅区域,木质的餐桌,与吊灯相呼应。在设计时注重的整体规划,与居家装修的其他功能区也形成了很好的搭配,给予业主更舒适的生活感受。

金地名悦-89平-现代简约风格-卧室2.jpg 金地名悦-89平-现代简约风格-卧室1.jpg

以原木色为卧室主色调营造的空间凸显干净利落,简约的石膏线条勾勒出背景墙凸显空间协调。结合设计感的吊灯让卧室瞬间进入温馨时刻,为业主提供舒适的休息氛围。

金地名悦-89平-现代简约风格-卫生间.jpg

在色彩上选择以灰色基调为主,搭配木质柜子,不适宜用过多色彩搭配,因卫生间是追求舒适的地方,只有整洁统一的色调才能给人最舒适感觉。

金地名悦-89平-现代简约风格-厨房.jpg

厨房很简洁大方,灰色搭配木质橱柜感觉很亲切。给人一种温馨的美感。为了使厨房不显得杂乱,加了一些便于储物的橱柜、吊柜。结合厨房电器统一考虑布置管线,方便使用,在厨房预留较多的插座,以减少装修时的工作。

金地名悦-89平-现代简约风格-平面布局图.jpg

案例设计师

林凤装饰设计师

设计师:林凤装饰设计师

从业时间:8年

设计理念:因生活而设计,因设计而美好。

预约设计师

算算你家装修多少钱

报名即享丰厚赠品,品质装修

免费报价
咨询热线:400-656-9909
20190221103704574636.jpg

精品设计案例

20180612134930523248.jpg 服务号二维码.jpg