立即预约 立即预约
免费定制整装家居

免费定制整装家居

一站置家 全程无忧 一省到底
hide.png

当前位置: 首页 > 装修案例效果图 > 龙湖唐宁ONE

龙湖唐宁ONE 105平 现代简约风格效果图

收藏
案例风格 现代简约 案例户型 三居 案例面积 105平米
楼盘名称 龙湖唐宁ONE 设计师 林凤装饰设计师 案例类型 旧房改造

设计理念:业主为中年夫妇, 带个孩子, 要求材料环保.,储藏空间多一些.注重细节方面

客厅
第1张
第2张
餐厅
第1张
卧室
第1张
第2张
卫生间
第1张
厨房
第1张
第2张
门厅
第1张
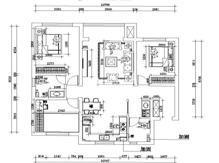
户型图
第1张
  • 案例详情

龙湖唐宁ONE-130平-现代风格-客厅.jpg 龙湖唐宁ONE-130平-现代风格-沙发墙.jpg

客厅作为家的主要灵魂之一.。首先强调的是实用功能.舒适是家具的首要前提, 其次是空间的大小以及布局的合理运用. 客厅电视背景墙上面做的是直线棚.四周用双眼皮做的造型. , 这样做显得举架会高一些.. 电视背景墙用的是理石. 显得大气简约. 沙发背景墙用的是乳白色于蓝色相接的软包,. 沙发背景墙这样做显的客厅空间活起来了.

龙湖唐宁ONE-130平-现代风格-餐厅.jpg

以简洁明快的现代风格为主. 简洁和实用是现代风格的基本特点,餐厅是家具有的生活心脏,不仅要美观. 更着重实用性/ 客厅及餐厅的地面用的是具有现代风格的黄灰色地砖, 强烈的凸显了现代现代风格,. 餐厅背景墙造型.用的是黑色的硬包收的一个框.,里面再用一张挂画进行空间及色彩的搭配。

龙湖唐宁ONE-130平-现代风格-卧室.jpg 龙湖唐宁ONE-130平-现代风格-卧室墙.jpg

主卧室整体用的是壁纸, 床头的壁纸颜色比较深, 电视墙的壁纸颜色用的是浅色. 两个颜色相互对比. 空间看起来更强烈,. 家具用的是白色的家具, 这样看起来空间更饱满.

龙湖唐宁ONE-130平-现代风格-卫生间.jpg

卫生间的设计现代感觉比较强烈. 爵士白的墙砖和原木色的橱柜形成了鲜明的对比, 卫生间的淋浴区.用浴屏做分割、 形成了干湿分离.

龙湖唐宁ONE-130平-现代风格-厨房.jpg 龙湖唐宁ONE-130平-现代风格-厨房2.jpg

厨房整体用的是白色的橱柜搭配灰色的仿古砖进行的设计. 厨房的空间固然不大. 但整体颜色的运用以及合理的空间布局,使厨房显得干净整洁/

龙湖唐宁ONE-130平-现代风格-玄关.jpg 龙湖唐宁ONE-130平-现代风格-平面图.jpg

案例设计师

林凤装饰设计师

设计师:林凤装饰设计师

从业时间:5年

设计理念:持之以恒的学习是设计的来源,责任感是是原则.而灵感是设计的升华

预约设计师

算算你家装修多少钱

报名即享丰厚赠品,品质装修

免费报价
咨询热线:400-656-9909
20190221103704574636.jpg

精品设计案例

20180612134930523248.jpg 服务号二维码.jpg