立即预约 立即预约
免费定制整装家居

免费定制整装家居

一站置家 全程无忧 一省到底
hide.png

当前位置: 首页 > 装修案例效果图 > 保利紫荆公馆

保利紫荆公馆 135平 美式风格效果图

收藏
案例风格 美式 案例户型 三居 案例面积 135平米
楼盘名称 保利紫荆公馆 设计师 林凤装饰设计师 案例类型 改善性住宅

设计理念:美式追求原生态感,北欧则以简约实用。融合风格更符合东方审美需求。空间布局与色彩协调。

客厅
第1张
第2张
餐厅
第1张
第2张
卧室
第1张
卫生间
第1张
厨房
第1张
阳台
第1张
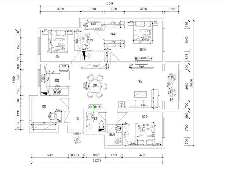
户型图
第1张
  • 案例详情

保利紫荆公馆-135平-简美风格-客厅2.jpg 保利紫荆公馆-135平-简美风格-客厅.jpg

洁白色理石墙面与灰色地砖映衬,两侧背景墙点缀金属条,现代与美式结合,隐约一种古典感觉。

保利紫荆公馆-135平-简美风格-餐厅3.jpg 保利紫荆公馆-135平-简美风格-餐厅.jpg

早餐与晚餐必不可少,酒柜功能展示工艺品与酒,中间操作台配置满足电器空间需求,在餐边柜映衬下形成鲜明对比。

保利紫荆公馆-135平-简美风格-南主卧.jpg

色彩给人一种舒适感,简洁装饰带有宁静感。蝴蝶装饰画点缀床头背景,顶棚简洁线条与吊灯相呼应。

保利紫荆公馆-135平-简美风格-主卫.jpg

空间较大,暖色墙地砖与洁白色坐便、浴缸为基调,点缀胡桃木手盆档次提升。

保利紫荆公馆-135平-简美风格-厨房.jpg

灰色地砖与胡桃木色柜体在亮灰色墙砖对比下,带给空间沉稳感觉.整体厨房格局规划,留有电器操作空间。

保利紫荆公馆-135平-简美风格-阳台.jpg 保利紫荆公馆-135平-简美风格-平面.jpg

案例设计师

林凤装饰设计师

设计师:林凤装饰设计师

从业时间:16年

设计理念:设计源于生活,细节成就品质。

预约设计师

算算你家装修多少钱

报名即享丰厚赠品,享半价装修

免费报价
咨询热线:400-656-9909
20190221103704574636.jpg

精品设计案例

20180612134930523248.jpg 服务号二维码.jpg