立即预约 立即预约
免费定制整装家居

免费定制整装家居

一站置家 全程无忧 一省到底
hide.png

当前位置: 首页 > 装修案例效果图 > 美的时代城

美的时代城 126平 北欧风格效果图

收藏
案例风格 北欧 案例户型 三居 案例面积 126平米
楼盘名称 美的时代城 设计师 林凤设计师 案例类型 改善性住宅

设计理念:本案装修风格定位为北欧风格,源于欧洲北部地区,材质多为实木,大多设计也融合了很多现代元素,保留了北欧风的天然材质和线条简洁性。棚面为无主灯设计,地面以原木色木质地板为主,搭配浅实木框架的家具。软装饰搭配纯棉,亚麻等天然材质,饰品摆件以陶器及多色玻璃。全屋照明为无主灯设计。

客厅
第1张
第2张
第3张
第4张
第5张
餐厅
第1张
卧室
第1张
卫生间
第1张
厨房
第1张
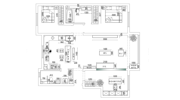
户型图
第1张
  • 案例详情

美的时代城-126平-北欧风格-客厅01.jpg 美的时代城-126平-北欧风格-客厅03.jpg 美的时代城-126平-北欧风格-客厅02.jpg 美的时代城-126平-北欧风格-客厅04.jpg 美的时代城-126平-北欧风格-客厅05.jpg

客厅与书房打通了,以半墙为区域划分,这样增加了客厅和书房的通透感,让两个空间看起来都大了很多;也可以通过半墙上的折门拉开后完全隔离两个空间,两个固定的空间变成了两个活的空间。电视背景墙采用电动幕布设计,电视柜采用吊柜形式,不阻碍幕布的下落。

美的时代城-126平-北欧风格-餐厅.jpg

厨房与餐厅混合,采光与通风都很好,考虑橱柜用白色烤漆的,所以墙砖用了对比强烈质感粗糙的灰蓝色墙砖。餐厅位于厨房中心位置,一边以椅子的形式,另一边以条凳形式,有就餐人数扩充的空间。总体均为无主灯设计,但是在餐桌上方做了一个吊灯设计,固定了餐桌的位置,增加格局感。

美的时代城-126平-北欧风格-卧室.jpg

卧室照明以点光源和装饰光源为主,无主灯设计,不占用上方空间。次卧因为放不下床头柜,为了增加格局感,在床头两侧增加了吊灯。主卧通过衣柜柜体隔出的衣帽间区域把卫生间和主卧区分开来。

美的时代城-126平-北欧风格-卫生间.jpg

主卫空间比较大,以冷灰色墙地砖为主,配白色陶瓷卫浴,次卫比较小,所以做了干湿分离的设计,干湿分离区域放置了洗衣机。

美的时代城-126平-北欧风格-厨房.jpg 美的时代城-126平-北欧风格-平面图.jpg

案例设计师

林凤设计师

设计师:林凤设计师

从业时间:20年

设计理念:您的梦想由我来实现。

预约设计师

算算你家装修多少钱

报名即享丰厚赠品,享半价装修

免费报价
咨询热线:400-656-9909
20190221103704574636.jpg

精品设计案例

20180612134930523248.jpg 服务号二维码.jpg