立即预约 立即预约
免费定制整装家居

免费定制整装家居

一站置家 全程无忧 一省到底
hide.png

当前位置: 首页 > 装修案例效果图 > 龙湖西府原著

龙湖西府原著 130平 欧式风格效果图

收藏
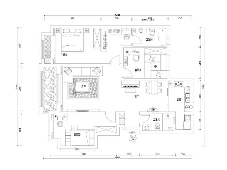
案例风格 欧式 案例户型 三居 案例面积 130平米
楼盘名称 龙湖西府原著 设计师 林凤装饰设计师 案例类型 改善性住宅

设计理念:业主是三口之家,希望有足够的收纳空间,经典美式的沉稳内涵。

客厅
第1张
第2张
第3张
餐厅
第1张
第2张
卧室
第1张
卫生间
第1张
厨房
第1张
门厅
第1张
户型图
第1张
  • 案例详情

龙湖西府原著-130平-美式风格-客厅  (1).jpg 龙湖西府原著-130平-美式风格-客厅  (2).jpg 龙湖西府原著-130平-美式风格-客厅  (3).jpg

入户左侧设置客厅,全屋大面积暖色壁纸,家具为深木色,室内地面铺装经典美式方块地板,相比较传统条形地板让地面更加丰富多样。

龙湖西府原著-130平-美式风格-餐厅 (1).jpg 龙湖西府原著-130平-美式风格-餐厅 (2).jpg

整个餐厅没有加入多余的装饰,实木色的餐桌搭配实木座椅,实木的餐边柜造出浓浓的就餐氛围,复古的吊灯增添了几分韵味。业主为女儿准备的钢琴,一家人就餐的同时可以音乐助兴。

龙湖西府原著-130平-美式风格-卧室.jpg

业主喜欢多的储物空间,选择了榻榻米这种处理方式。使空间具备了,衣帽间,客卧,书房,娱乐室等功能,大大提升了利用率。整体颜色是米黄色,符合卧室温暖的氛围。

龙湖西府原著-130平-美式风格-卫生间.jpg

卫生间脱离美式以现代风格为主,整个色彩以白色为主,显得空间干净,大气,洗衣机与手盆一体式规划,增加一个可以摆放物品的大台面。是女主人的最爱。大面积的镜子让整个空间看起来干净,整洁。

龙湖西府原著-130平-美式风格-厨房.jpg

白的橱柜搭配高雅的米色墙砖和暖色地砖,在视觉上增加制作美食的体验氛围。U型的橱柜,嵌入式电器的高柜,增加了操作空间,增加了收纳空间,宽大的台面,让业主尽享烹饪的乐趣。

龙湖西府原著-130平-美式风格-玄关.jpg 龙湖西府原著-130平-美式风格-平面图.jpg

案例设计师

林凤装饰设计师

设计师:林凤装饰设计师

从业时间:8年

设计理念:实用至上

预约设计师

算算你家装修多少钱

报名即享丰厚赠品,品质装修

免费报价
咨询热线:400-656-9909
20190221103704574636.jpg

精品设计案例

20180612134930523248.jpg 服务号二维码.jpg