立即预约 立即预约
免费定制整装家居

免费定制整装家居

一站置家 全程无忧 一省到底
hide.png

当前位置: 首页 > 装修案例效果图 > 美的时代城

美的时代城 107平 日式风格效果图

收藏
案例风格 日式 案例户型 三居 案例面积 107平米
楼盘名称 美的时代城 设计师 林凤装饰设计师 案例类型 婚房

设计理念:根据建筑物的使用性质、所处环境和相应标准,运用物质技术手段和设计原理,创造功能合理、舒适优美、满足人们物质和精神生活需要的室内环境。

客厅
第1张
第2张
餐厅
第1张
卧室
第1张
卫生间
第1张
厨房
第1张
门厅
第1张
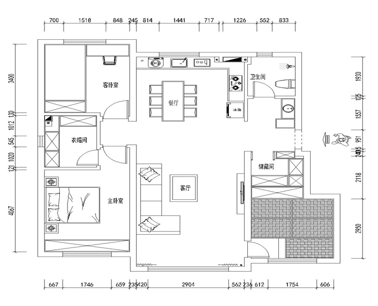
户型图
第1张
  • 案例详情

美的时代城-107平-日式风格-客厅.jpg 美的时代城-107平-日式风格-客厅2.jpg

客厅作为整个房子最重要的会客地方,所以要给记住以及客人耳目一新的感觉,整个客厅的主色调是原木色,沙发背景墙四副挂画中的黑色团构成一个整体图像,作为客厅的点缀色,以及米白色沙发搭配灰色窗帘,整个客厅在色彩搭配得体,颜色上不单调。

美的时代城-107平-日式风格-餐厅.jpg

餐厅是人们就餐的场所,餐厅现在已经成为重要的活动场所,将餐桌摆放到厨房内,动线合理,业主炒完菜后可以将菜放到餐桌上,不占用橱柜台面的地方,家里来客人的情况下,可以一边在餐桌上切菜,一边做饭,不影响客厅区域人的正常交谈。

美的时代城-107平-日式风格-卧室.jpg

卧室是睡眠的地方,也是放衣服的地方,卧室的精心设计会影响到房间的整齐度。卧室不需要太艳丽的色彩来进行搭配,清新淡雅已经是现在是最受年轻人喜爱的,床的两边给业主留足了活动空间,几年后可以摆放婴儿床。

美的时代城-107平-日式风格-卫生间.jpg

卫生间会直接影响整个室内的空气质量,在设计上需要考虑实用性,所以设计的是干湿分离,将洗手盆放在外面,这样有人在使用卫生间的同时也可以在外面洗漱,可以同时使用 , 方便了业主的生活。

美的时代城-107平-日式风格-厨房.jpg

厨房的设计要考虑到通风以及光照,尽可能的利用空间,将实用美观的餐桌与厨房紧密相连,形成敞开式厨房,非常适合夫妻二人的生活品味,可以增广人们的视野,可以在空间上给人一种放松自然的心情在里面,是整个空间在视觉上变大。

美的时代城-107平-日式风格-门厅.jpg 美的时代城-107平-日式风格-平面图.jpg

案例设计师

林凤装饰设计师

设计师:林凤装饰设计师

从业时间:11年

设计理念:艺术的手法,以人为本

预约设计师

算算你家装修多少钱

报名即享丰厚赠品,享半价装修

免费报价
咨询热线:400-656-9909
20190221103704574636.jpg

精品设计案例

20180612134930523248.jpg 服务号二维码.jpg