立即预约 立即预约
免费定制整装家居

免费定制整装家居

一站置家 全程无忧 一省到底
hide.png

当前位置: 首页 > 装修案例效果图 > 中海和平之门三期

中海和平之门三期 85平 北欧风格效果图

收藏
案例风格 北欧 案例户型 二居 案例面积 85平米
楼盘名称 中海和平之门三期 设计师 林凤装饰设计师 案例类型 改善性住宅

设计理念:北欧这种风格是最简单的风格,可以将你眼中的一切杂乱全部除去。在这里,质量先于数量,节俭与精致及极简主义交错在一起!

客厅
第1张
第2张
第3张
餐厅
第1张
第2张
卧室
第1张
卫生间
第1张
厨房
第1张
第2张
门厅
第1张
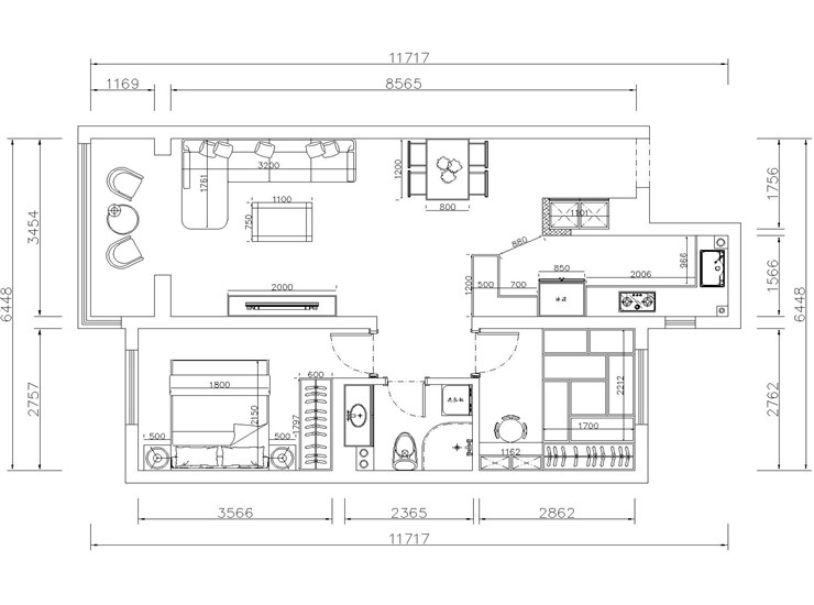
户型图
第1张
  • 案例详情

中海和平之门三期-85平-北欧风格-客厅(1).jpg 中海和平之门三期-85平-北欧风格-客厅(2).jpg 中海和平之门三期-85平-北欧风格-客厅(3).jpg

客厅是整个空间的重点,白色一直是北欧的主色,灰色绝对是跳跃的中性色调,在你的客厅加入一些灰色了,一个舒适的灰色沙发,浅灰色在北欧空间当中会很好。

中海和平之门三期-85平-北欧风格-餐厅(2).jpg 中海和平之门三期-85平-北欧风格-餐厅(1).jpg

因为餐厅的空间比较大,餐厅背景画的个性搭配令餐厅平简约不简单,看着就令人食欲大增。

中海和平之门三期-85平-北欧风格-卧室(1).jpg

卧室虽然说是休息的地方,所以没有做过多造型做的石膏线,背景墙用了装饰画,让人看起来放松舒适。

中海和平之门三期-85平-北欧风格-卫生间(1).jpg

卫生间是每个家庭的比较重要的环节,在墙砖的选择上,延续了风格的特点,米色的墙砖让空间更加的洁净。

中海和平之门三期-85平-北欧风格-厨房(2).jpg 中海和平之门三期-85平-北欧风格-厨房(1).jpg

厨房是每个家庭的重中之重,在橱柜的选择上,延续了风格的特点,木色的下柜,白色的吊柜显得厨房更加的洁净。

中海和平之门三期-85平-北欧风格-门厅(1).jpg 中海和平之门三期-85平-北欧风格-平面图.jpg

案例设计师

林凤装饰设计师

设计师:林凤装饰设计师

从业时间:9年

设计理念:设计在于对空间尺寸和功能的合理安排,而非杂乱的造型堆砌。

预约设计师

算算你家装修多少钱

报名即享丰厚赠品,享半价装修

免费报价
咨询热线:400-656-9909
20190221103704574636.jpg

精品设计案例

20180612134930523248.jpg 服务号二维码.jpg