立即预约 立即预约
免费定制整装家居

免费定制整装家居

一站置家 全程无忧 一省到底
hide.png

当前位置: 首页 > 装修案例效果图 > 中海康城

中海康城 128平 现代简约风格效果图

收藏
案例风格 现代简约 案例户型 三居 案例面积 128平米
楼盘名称 中海康城 设计师 林凤装饰设计师 案例类型 改善性住宅

设计理念:业主家庭情况及要求: 房主是商人,喜欢现代风格的空间,要大而不空,同时具有时尚感。设计师整体设计理念: 通过与业主的沟通,了解到业主喜欢时尚有特色的风格,但又不能过于复杂,最终把本案的设计风格定位为现代风格,给业主打造一个 有格调的生活环境。

客厅
第1张
第2张
餐厅
第1张
卧室
第1张
第2张
卫生间
第1张
休闲区
第1张
过廊
第1张
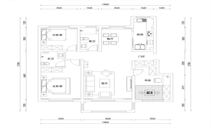
户型图
第1张
  • 案例详情

中海康城-128平-现代风格-客厅.jpg 中海康城-128平-现代风格-客厅1.jpg

客厅是整个空间重要的区域。顶部虽然只做了简单的双眼皮,但是与沙发和挂画一搭配,让整个空间看起来简约、干净,体现出现代简约的风格提点。

中海康城-128平-现代风格-餐厅.jpg

餐厅是享受美食区域。顶部做了简单的双眼皮,充分体现出了现代简约的风格。餐桌的墙面挂上一些壁画,让单调的空间充满了气氛,让人就餐的时候不会显得那么枯燥。

中海康城-128平-现代风格-次卧.jpg 中海康城-128平-现代风格-主卧.jpg

卧室是主人休息的地方。标准的卧室设计,非常的合理简洁和实用。没有过多的设计,所以空间看起来更加的大,但却不会显得空。

中海康城-128平-现代风格-卫生间.jpg

卫生间的区域做了简单的干湿分离。墙面和地面选用了简洁、干净的瓷砖,配上暖色的灯光,使整个区域看起来更加的温暖和舒适。

中海康城-128平-现代风格-榻榻米.jpg 中海康城-128平-现代风格-玄关.jpg 中海康城-128平-现代风格-户型图.jpg

案例设计师

林凤装饰设计师

设计师:林凤装饰设计师

从业时间:15年

设计理念:用心感受生活,用设计完善空间,让设计与生活空间完美结合。

预约设计师

算算你家装修多少钱

报名即享丰厚赠品,享半价装修

免费报价
咨询热线:400-656-9909
20190221103704574636.jpg

精品设计案例

20180612134930523248.jpg 服务号二维码.jpg