立即预约 立即预约
免费定制整装家居

免费定制整装家居

一站置家 全程无忧 一省到底
hide.png

当前位置: 首页 > 装修案例效果图 > 龙湖唐宁ONE

龙湖唐宁ONE 88平 欧式风格效果图

收藏
案例风格 欧式 案例户型 二居 案例面积 88平米
楼盘名称 龙湖唐宁ONE 设计师 林凤装饰设计师 案例类型 改善性住宅

设计理念:业主家庭情况及要求:业主的工作比较忙,每天都过着两点一线的生活。他希望回到家后能够放松,让人心情舒畅,感到宁静和安逸,希望在纷扰的现实生活中找到平衡,缔造出一个令人心驰神往的空间。设计师整体设计理念:本案是一个两居室的房子,此户型的装修风格属于简欧风格,简欧风格就是简化的欧式风格,相较于欧式风格更为实用和多元化。本案的整体色调为白色,对应着简欧的简单而不失奢华,营造典雅、自然、高贵的气质。

客厅
第1张
第2张
餐厅
第1张
第2张
卧室
第1张
第2张
卫生间
第1张
厨房
第1张
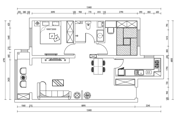
户型图
第1张
  • 案例详情

龙湖唐宁ONE-88平-简欧风格-客厅1.jpg 龙湖唐宁ONE-88平-简欧风格-客厅2.jpg

客厅主要作用是满足客户生活起居,本案客厅的沙发颜色选用白色,与整体色调相呼应。沙发背景墙和电视背景墙都采用成品石膏平线做装饰,墙面贴壁纸,客厅采用800*800的大理石地砖,使客厅的更加亮堂。

龙湖唐宁ONE-88平-简欧风格-餐厅1.jpg 龙湖唐宁ONE-88平-简欧风格-餐厅2.jpg

本案餐厅的空间较小,所以放置了一个四人餐桌,既能满足就餐需求,同时也节省空间;座椅采用欧式软包座椅,让人坐着更加舒服,也符合整体的风格。

龙湖唐宁ONE-88平-简欧风格-卧室2.jpg 龙湖唐宁ONE-88平-简欧风格-卧室1.jpg

卧室的床采用欧式的床,床的边角采用金属雕花加以装饰,色泽淡雅清新,温暖的气息充盈整个房间,灯具采用欧式吊灯,时尚,大气;整体突显出高雅、端庄的感觉。

龙湖唐宁ONE-88平-简欧风格-卫生间.jpg

卫生间的地砖采用斜拼方式,周边走一圈波打线加以装饰,卫生间 的储存柜也采用欧式风格,镜子周边采用欧式线条装饰,低调而不失奢华。

龙湖唐宁ONE-88平-简欧风格-厨房.jpg

本案例的厨房面积较小,所以橱柜采用L型设计,很好的适应小面积的厨房,橱柜的柜门整体采用简欧造型,风格统一。

龙湖唐宁ONE-88平-简欧风格-户型图.jpg

案例设计师

林凤装饰设计师

设计师:林凤装饰设计师

从业时间:9年

设计理念:用最自由,浪漫的元素来表达灵感。

预约设计师

算算你家装修多少钱

报名即享丰厚赠品,品质装修

免费报价
咨询热线:400-656-9909
20190221103704574636.jpg

精品设计案例

20180612134930523248.jpg 服务号二维码.jpg