立即预约 立即预约
免费定制整装家居

免费定制整装家居

一站置家 全程无忧 一省到底
hide.png

当前位置: 首页 > 装修案例效果图 > 龙湖唐宁one

龙湖唐宁one 140平 现代简约风格效果图

收藏
案例风格 现代简约 案例户型 四居 案例面积 140平米
楼盘名称 龙湖唐宁one 设计师 林凤设计师 案例类型 婚房

设计理念:本案以现代简约风格为主,整体方案上做了一些调整,合理的规划了布局,增加空间的利用率,把传统的结构形式通过重新设计组合以另一种名族特色的标志符号出现。

客厅
第1张
第2张
第3张
第4张
餐厅
第1张
卧室
第1张
卫生间
第1张
厨房
第1张
门厅
第1张
过廊
第1张
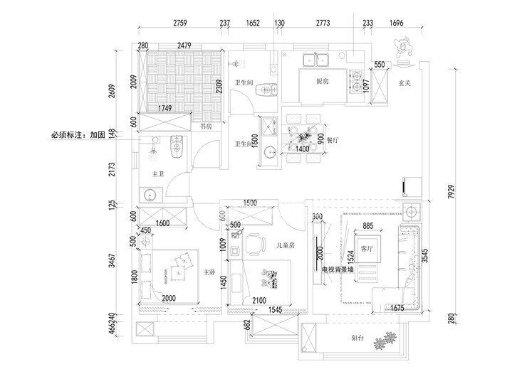
户型图
第1张
  • 案例详情

龙湖唐宁one-140平-现代简约-电视墙.jpg 龙湖唐宁one-140平-现代简约-客厅.jpg 龙湖唐宁one-140平-现代简约-客厅1.jpg 龙湖唐宁one-140平-现代简约-沙发墙.jpg

2.客厅整个空间以白色烤漆家具为主,在家具配置上,白亮光系列家具,独特的光泽使家具倍感时尚,具有舒适与美观并存的享受。在配饰上,延续了黑白灰的主色调,以简洁的造型、完美的细节,营造出时尚前卫的感觉。

龙湖唐宁one-140平-现代简约-餐厅.jpg 龙湖唐宁one-140平-现代简约-卧室.jpg 龙湖唐宁one-140平-现代简约-卫生间.jpg

干湿分离的卫生间能保持淋浴以外的区域的干燥性,而里面的病毒和细菌不能随着空气的分散附着在洗漱用品上,已知卫生间细菌的滋长。

龙湖唐宁one-140平-现代简约-厨房_.jpg

厨房整体,电器全部放置于橱柜之中,使厨房整齐划一。如果空间很小,就要选择推拉门。烤箱放置在灶具下方的底柜中,烤箱附近要有一个小的操作台面。洗碗机放在水池附近的底柜中,方便上下水源。其他的小电器可以根据厨房的格局及家人的生活习惯使它们各得其所。

龙湖唐宁one-140平-现代简约-门厅.jpg 龙湖唐宁one-140平-现代简约-过廊.jpg 龙湖唐宁one-140平-现代简约-平面图.jpg

案例设计师

林凤设计师

设计师:林凤设计师

从业时间:5年

设计理念:设计源于生活,生活因设计而改变,用有限的空间。做无限的设计,成就梦想之家。

预约设计师

算算你家装修多少钱

报名即享丰厚赠品,享半价装修

免费报价
咨询热线:400-656-9909
20190221103704574636.jpg

精品设计案例

20180612134930523248.jpg 服务号二维码.jpg