立即预约 立即预约
免费定制整装家居

免费定制整装家居

一站置家 全程无忧 一省到底
hide.png

当前位置: 首页 > 装修案例效果图 > 龙湖花千树

龙湖花千树 86平 现代简约风格效果图

收藏
案例风格 现代简约 案例户型 二居 案例面积 86平米
楼盘名称 龙湖花千树 设计师 李丹 案例类型 婚房

设计理念:业主为,一对新婚夫妇,比较喜欢一些时尚感较强的设计。以品质家居为主,简单的线条,配以金属质感的配饰,使整个空间更加富有空间感。

客厅
第1张
第2张
第3张
卧室
第1张
卫生间
第1张
厨房
第1张
门厅
第1张
第2张
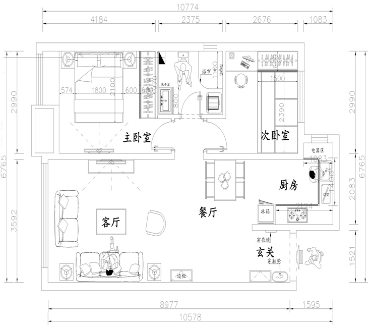
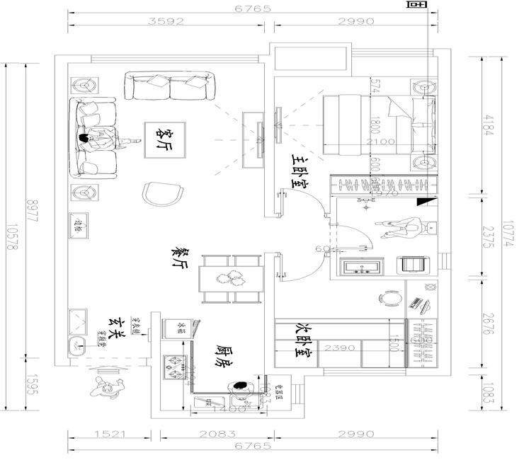
户型图
第1张
第2张
  • 案例详情

龙湖花千树-86平-现代风格-客厅 (2).jpg 龙湖花千树-86平-现代风格-客厅.jpg 龙湖花千树-86平-现代风格-客厅 (3).jpg

客厅整体以深色为主,背景墙采用地砖上墙,整个空间质感能更家好一些,两侧以黑色茶镜收边,让沉稳的地砖显着空间更加宽敞。

龙湖花千树-86平-现代风格-卧室.jpg

卧室水休息睡眠的地方,整体的空间颜色选用浅色为主,搭配深色的点缀,让整个卧室更近富有生机,让人们休息更加放松愉悦。

龙湖花千树-86平-现代风格-卫生间.jpg

卫生间是人们经常使用的地方,使用了比较俏皮跳跃点的墙砖,浴柜选择更加沉稳的黑白搭配,俏皮中又不失沉稳

龙湖花千树-86平-现代风格-厨房.jpg

对于厨房的设计,是整个房屋重中之重的一点,采用烤漆面的厨房,黑色的台面,层次感更强,全部以白色为主,使狭小的厨房更加明亮

龙湖花千树-86平-现代风格-玄关.jpg 龙湖花千树-86平-现代风格-玄关 (2).jpg 龙湖花千树-86平-现代风格-平面布图.jpg 龙湖花千树-86平-现代风格-平面布置图.jpg

案例设计师

李丹

设计师:李丹

从业时间:5年

设计理念:用我的专业和你的想法,打造专业的家

预约设计师

算算你家装修多少钱

报名即享丰厚赠品,品质装修

免费报价
咨询热线:400-656-9909
20190221103704574636.jpg

精品设计案例

20180612134930523248.jpg 服务号二维码.jpg